EasyManua.ls Logo

FPG Fusion - Electrical Circuit Diagram

FPG Fusion
40 pages
Print Icon
To Next Page IconTo Next Page
To Next Page IconTo Next Page
To Previous Page IconTo Previous Page
To Previous Page IconTo Previous Page
Loading...
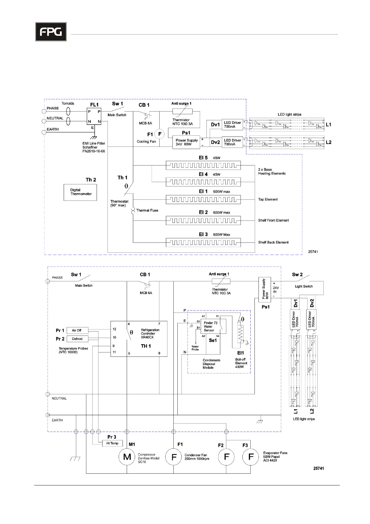
Part No. 22958 Rev. P June 2017 - 36 - Fusion, Food & Beverage Cabinet
ELECTRICAL CIRCUIT DIAGRAM
Model: IN-FUS-HC10-A004
1000 mm Open-front Food & Beverage Cabinet

Table of Contents