EasyManua.ls Logo

Friedrich VRP7k - Wiring Diagrams; 208;230 V Wiring Diagram

Friedrich VRP7k
95 pages
Print Icon
To Next Page IconTo Next Page
To Next Page IconTo Next Page
To Previous Page IconTo Previous Page
To Previous Page IconTo Previous Page
Loading...
79 PB
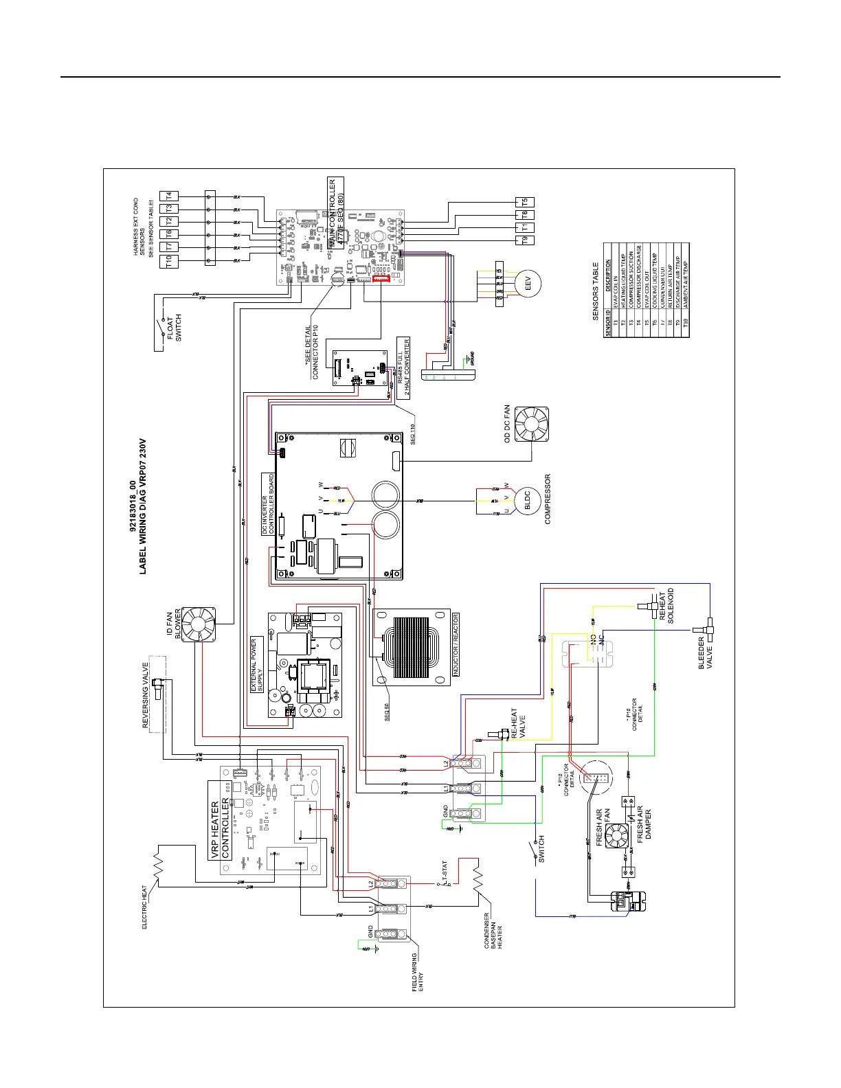
WIRING DIAGRAMS
208/230V 2.5 & 3.4 kW
30
Electrical Wiring Diagram - 208/230V 2.5 & 3.4 kW

Table of Contents

Related product manuals