EasyManua.ls Logo

GE Multilin 345 - Page 41

GE Multilin 345
254 pages
Print Icon
To Next Page IconTo Next Page
To Next Page IconTo Next Page
To Previous Page IconTo Previous Page
To Previous Page IconTo Previous Page
Loading...
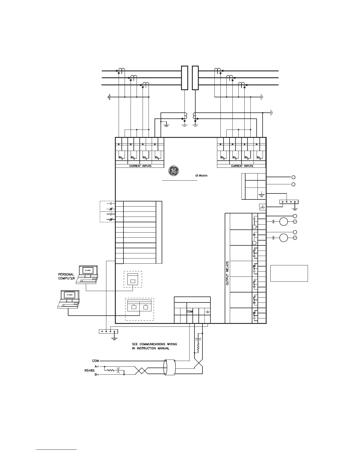
CHAPTER 2: INSTALLATION ELECTRICAL INSTALLATION
345 TRANSFORMER PROTECTION SYSTEM – INSTRUCTION MANUAL 2–13
Figure 2-15: Typical wiring diagram - Non-drawout
897745.CDR
POWER SUPPLY
L
N
+
-
chassis
gnd
B1
B2
B3
B4
B5
B6
B7
B8
B9
B10
DIGITAL INPUTS
52a W1 BKR (CI #1)
52b W1 BKR (CI #2)
INPUT 5
INPUT 6
INPUT 7
INPUT 8
ETHERNET
RJ45
mTRJ
10/100 BASE-T
100 BASE-FX
USB
TYPE B
A7
A9
A11
A1
A3
A5
A13
A15
A17
A19
A21
A2
A4
A6
A8
A10
A12
A14
A16
A18
A20
V
V
4WIREUSB
4 WIRE ETHERNET
USB
+
+
C5 C4 C3
--
++
RS485
IRIG-B
C1C2
COMMUNICATIONS
+
-
CONTROL
POWER
A
B
C
E5
D5
E6
D6
E7
D7
E8
D8
I
A
I
A
I
B
I
B
I
C
I
C
I
G
I
G
7 CRITICAL
FAILURE
RELAY
3 AUXILIARY
4 AUXILIARY
5 AUXILIARY
6 AUXILIARY
2 TRIP
1 TRIP
OPTIONAL
Front Panel
Rear Panel
345
Transformer Protection System
52a
52b
Winding 1 Breaker
Aux Contacts
E9
D9
E10
D10
E11
D11
E12
D12
I
A
I
A
I
B
I
B
I
C
I
C
I
G
I
G
WINDING 1
WINDING 2
52a
52b
Winding 2 Breaker
Aux Contacts
52a W2 BKR (CI #3)
52b W2 BKR (CI #4)
B11
B12
COMMON
CHASSIS GND
INPUT 9
INPUT 10
TRIP CIRCUIT
W1 BKR
TRIP CIRCUIT
W2 BKR
TRIP
COIL
TRIP
COIL
52a
W1 BKR
52a
W2 BKR
OUTPUT CONTACTS
SHOWN WITH NO
CONTROL POWER
TWO WINDING
TRANSFORMER
GROUND
BUS
GROUND
BUS
GND STUD
C6

Table of Contents

Related product manuals