EasyManua.ls Logo

GE Multilin 750 - Page 11

GE Multilin 750
58 pages
Print Icon
To Next Page IconTo Next Page
To Next Page IconTo Next Page
To Previous Page IconTo Previous Page
To Previous Page IconTo Previous Page
Loading...
Electrical installation
750/760 Quick Reference Guide 7
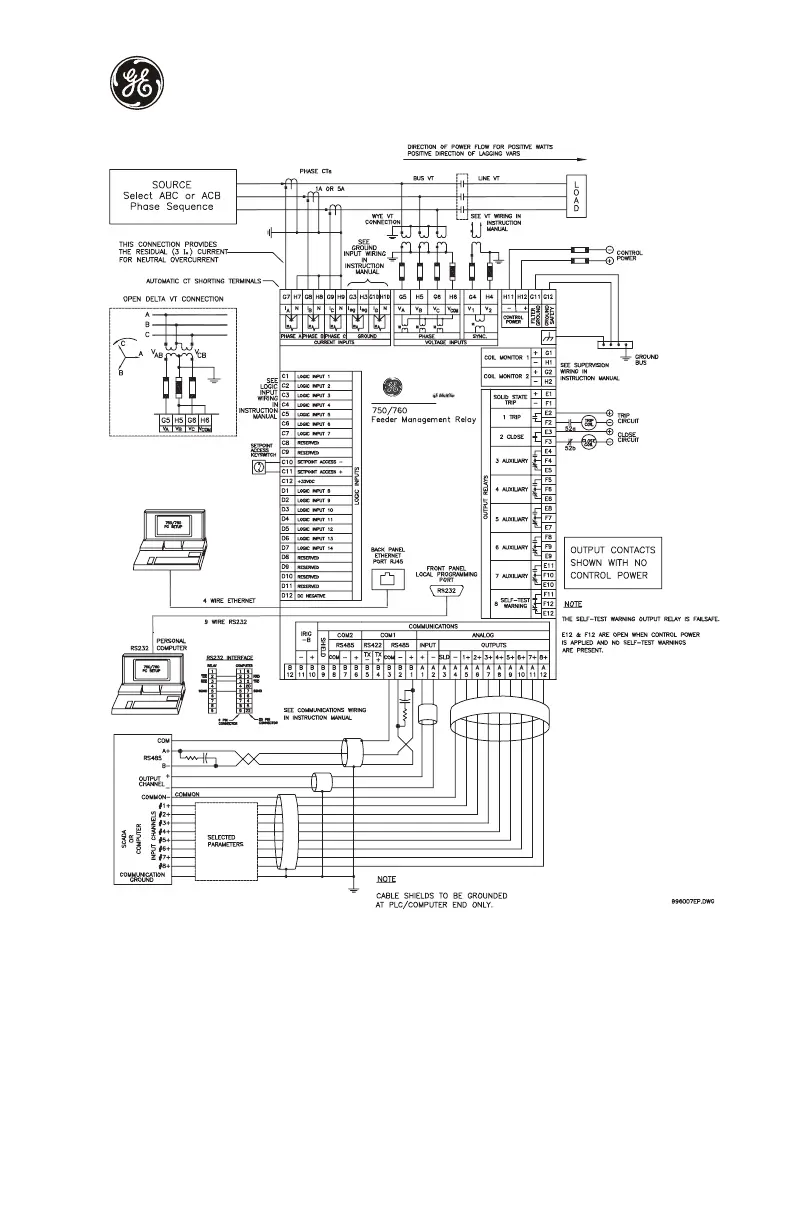
Figure 8: Typical wiring diagram
The phase sequence is user programmable to be either ABC or ACB rotation.
The voltage transformer input ratings must match the secondary ratings of the VT. The 750/
760 relays have four channels for AC voltage inputs, each with an isolating transformer. The
nominal secondary voltage must be in the 50 to 240 V range. The three phase inputs are
designated as the “bus voltage”. The Bus VT connections most commonly used, wye and
delta (or open delta), are shown in the Typical Wiring Diagram. Be aware that these voltage
channels are internally connected as wye. This is why the jumper between the phase B
terminal and the Vcom terminal must be installed with a delta connection.

Related product manuals