EasyManua.ls Logo

GE Multilin 750 - Accessing Setpoints via the Front Panel; Logic inputs; Analog inputs and outputs

GE Multilin 750
58 pages
Print Icon
To Next Page IconTo Next Page
To Next Page IconTo Next Page
To Previous Page IconTo Previous Page
To Previous Page IconTo Previous Page
Loading...
Accessing setpoints via the front panel
8 750/760 Quick Reference Guide
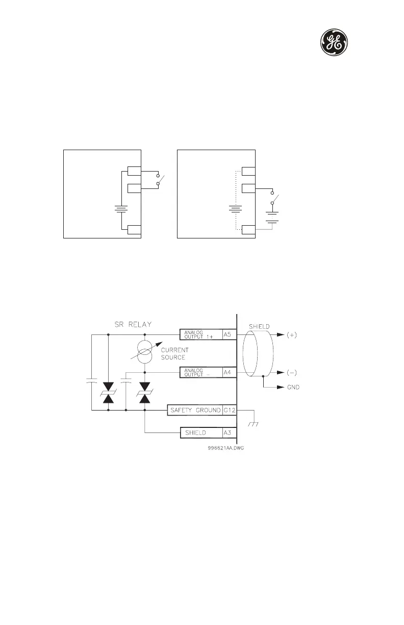
Logic inputs
Logic inputs are connected as indicated below. Ensure correct polarity and do not connect
any logic input circuits to ground or else relay hardware may be damaged. External
contacts can be connected to the relay's fourteen (14) logic inputs. As shown, these
contacts can be either dry or wet. It is also possible to use a combination of both contact
types.
Figure 9: Dry and wet contact connections
Analog inputs and outputs
Analog Inputs and Outputs are connected as indicated in the Typical Wiring Diagram. Also
refer to the figure below. Note that the shield of the cable shall be grounded at one point
only, usually at the PLC/computer end only.
Figure 10: Analog output connections
ACCESSING SETPOINTS VIA THE FRONT PANEL
Refer to Chapter 1 750/760 instruction manual for details on changing setpoints. To have
access to the relay setpoints, you must install a hardware jumper across terminals C10 and
C11 at the back of the relay case. Attempts to enter a new setpoint without this electrical
connection will result in an error message. Additional information is provided in the same
section regarding passcodes and accessing information via the serial ports of the relay.
Dry Contact Connection
Wet Contact Connection
750/760 RELAY750/760 RELAY
C12
C1C1
C12
+32VDC
+32VDC
Logic Input 1
Logic Input 1
32VDC
32VDC
DC Negative
DC Negative D12
D12
30 to 300 V DC
LOGICIN.CD
R

Related product manuals