EasyManua.ls Logo

Glamox NL95 - Input Modules

Glamox NL95
54 pages
Print Icon
To Next Page IconTo Next Page
To Next Page IconTo Next Page
To Previous Page IconTo Previous Page
To Previous Page IconTo Previous Page
Loading...
Rev.: 4, Print date: 2021-05-05
42
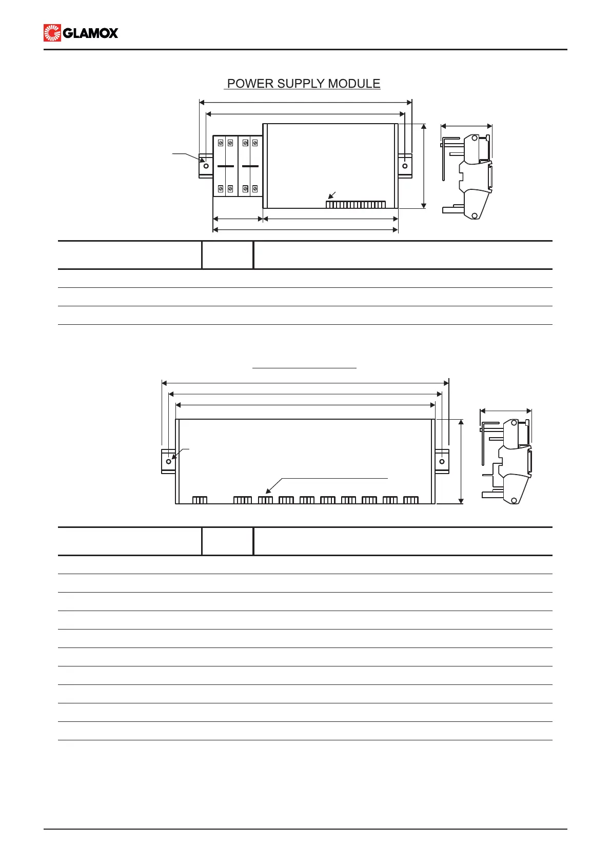
NL95
A
FIXING
HOLES
f6
12
7
H
B
C
CONNECTION TERMINALS
AND RJ45 CONNECTORS
MODULE CODE
ITNSLP-01P, 230 V AC
ITNSLP-01P, 115 V AC
ITNSLP-01P, 24VDC
C (mm)
WEIGHT
(kg)
H (mm)B (mm)A (mm)
482 93505525
482 93505525
482 93505525
2,4
2,4
02-04-212
02-04-213
02-04-214
MODULE CODE
ITNL-10-D-230
ITNL-10-S-230
230 V AC (115 V AC) Input modules
ITNL-10-D-24
ITNL-5-D-24
24 V DC Input modules
365
C (mm)
WEIGHT
(kg)
470
H (mm)B (mm)A (mm)
75505525
75
405
425
93
93
550
350
530
335
500
305
1,2
1,0
2,0
0,7
02-04-215
02-04-216
02-04-217
02-04-221
INPUT MODULES
2
A
127
410
C
FIXING
HOLES
f6
H
CONNECTION
TERMINALS
72
B
ITNL-5-D-230
275
75
310
325
0,7
02-04-219
ITNL-10-S-24 93
450 435 410
1,202-04-218
ITNL-13-S-24 93
550 530 500
1,102-04-222
ITNL-13-S-230
445
75
480
500 1,102-04-220
NOTE: Main unit may be used in combination with all Power Supply modules.
Light modules operating voltage needs to be exact as Power Supply module voltage.

Related product manuals