EasyManua.ls Logo

Grasso RC6 - Suction Gas Strainer; Pressure Relief Valve; Lubrication System

Grasso RC6
86 pages
Print Icon
To Next Page IconTo Next Page
To Next Page IconTo Next Page
To Previous Page IconTo Previous Page
To Previous Page IconTo Previous Page
Loading...
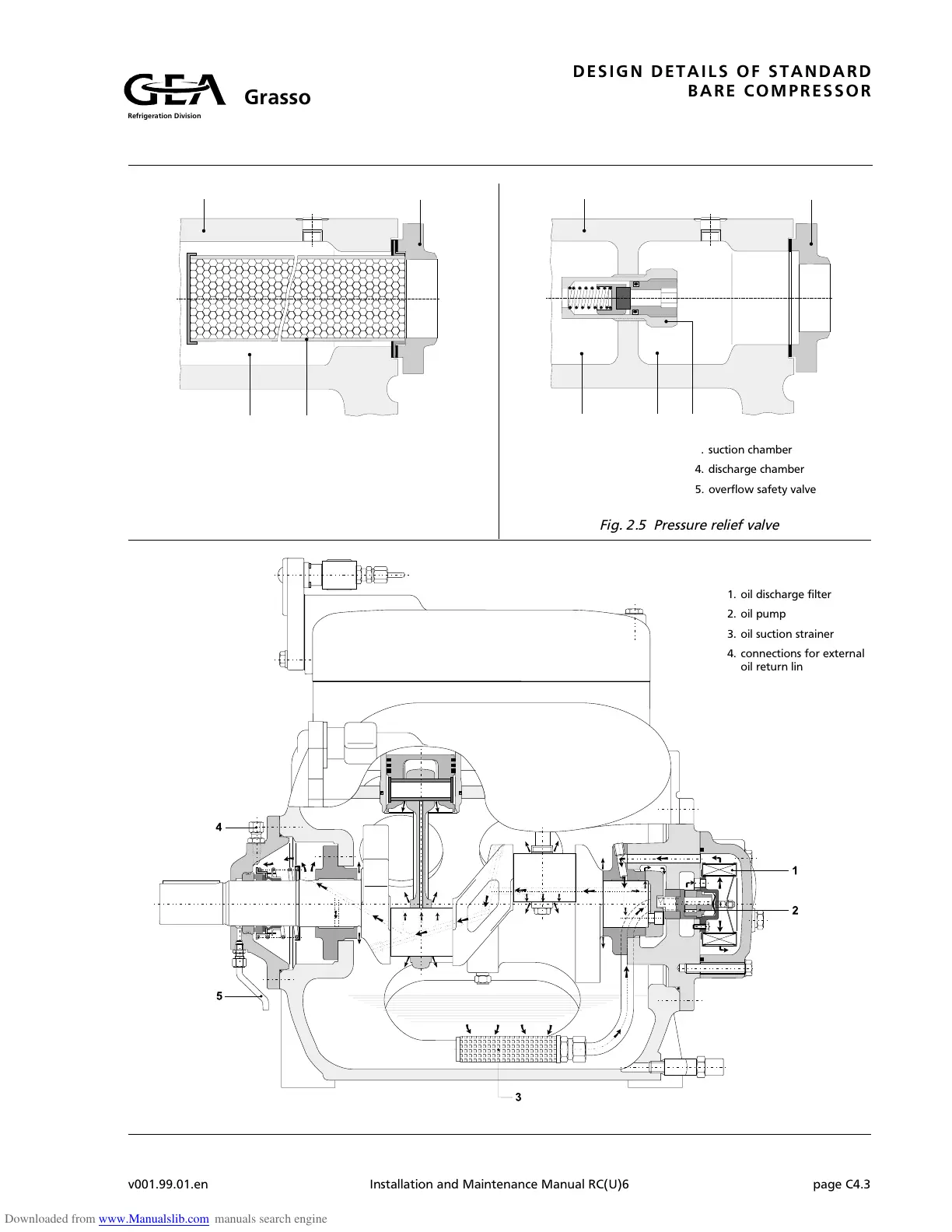
Fig. 2.6 Lubrication system
aaaaaaaaaaaaaaaaaaaaa
a
aaaaaaaaaaaaaaaaaaa
a
a
aaaaaaaaaaaaaaaaaaa
a
a
aaaaaaaaaaaaaaaaaaa
a
a
aaaaaaaaaaaaaaaaaaa
a
aaaaaaaaaaaaaaaaaaaaa
Fig. 2.5 Pressure relief valve
1. oil discharge filter
2. oil pump
3. oil suction strainer
4. connections for external
oil return line with
lubricating oil pressure
regulator and for (optional)
oil pressure safety switch
5. oil leakage drain
Fig. 2.4 Suction gas strainer
a
a
a
a
a
a
a
a
a
a
a
a
a
a
a
a
a
a
a
a
a
a
a
a
a
a
a
a
a
a
a
a
a
a
a
a
a
a
a
a
a
a
a
a
a
a
a
a
a
a
a
a
a
a
a
a
a
a
a
a
a
a
a
a
a
a
a
a
a
a
a
a
a
a
a
a
a
a
a
a
a
a
a
a
a
a
a
a
a
a
a
a
a
a
a
a
a
a
a
a
a
a
a
a
a
a
a
a
a
a
a
a
a
a
a
a
a
a
a
a
a
a
a
a
a
a
a
a
a
a
a
a
a
a
a
a
a
a
a
a
a
a
a
a
a
a
a
a
a
a
a
a
a
a
a
a
a
a
a
a
a
a
a
a
a
a
a
a
a
a
a
a
a
a
a
a
a
a
a
a
a
a
a
a
a
a
a
a
a
a
a
a
a
a
a
a
a
a
a
a
a
a
a
a
a
a
a
a
a
a
a
a
a
a
a
a
a
a
a
a
a
a
a
a
a
a
a
a
a
a
a
a
a
a
a
a
a
a
a
a
a
a
a
a
a
a
a
a
a
a
a
a
a
a
a
a
a
a
a
a
a
a
a
a
a
a
a
a
a
a
a
a
a
a
a
a
a
a
a
a
a
a
a
a
a
a
a
a
a
a
a
a
a
a
a
a
a
a
a
a
a
a
a
a
a
a
a
a
a
a
a
a
a
a
a
a
a
a
a
a
a
a
a
a
a
a
a
a
a
a
a
a
a
a
a
a
a
a
a
a
a
a
a
a
a
a
a
a
a
a
a
a
a
a
a
a
a
a
a
a
a
a
a
➍➎
1. crankcase
2. suction welding
neck flange
3. suction chamber
4. strainer element
1. crankcase
2. discharge welding
neck flange
3. suction chamber
4. discharge chamber
5. overflow safety valve
Refrigeration Division
Grasso
DESIGN DETAILS OF STANDARD
BARE COMPRESSOR
v001.99.01.en Installation and Maintenance Manual RC(U)6 page C4.3

Table of Contents