EasyManua.ls Logo

GSK DA98A - Page 17

GSK DA98A
80 pages
Print Icon
To Next Page IconTo Next Page
To Next Page IconTo Next Page
To Previous Page IconTo Previous Page
To Previous Page IconTo Previous Page
Loading...
DA98A AC Servo Drive Unit
User Manual
1 Installation environment
1 Protection
The servo drive unit without guard must be installed in a well protected electrical
cabinet to prevent corrosive or inflammable gas, liquid, electricity-conductor, metal
particls or oil fog from entering it.
2 Temperature and humidity
Environmental temperature should be 0-40 , the long -term safe working
temperature should be below 45 . And a good heat radiating should be done.
3 Vibration and shock
The measure to protect the AC servo drive unit from vibration should be below 0.5G
(4.9m/s
2
) and heavy pressure and impact during the unit installation should be avoided.
2 Installation method
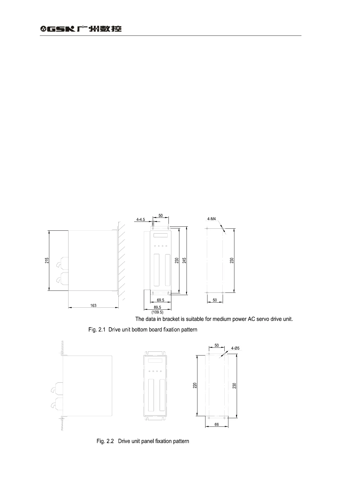
1 Fixation pattern
The drive unit can be fixed by bottom board or panel pattern with the direction
upright to the fixation plane.
Fig. 2.1 is a sketch map for bottom board fixation and Fig. 2.2 is for panel fixation.
7

Related product manuals