EasyManua.ls Logo

HBM AED9101D - Trigger Input Configuration

HBM AED9101D
36 pages
Print Icon
To Next Page IconTo Next Page
To Next Page IconTo Next Page
To Previous Page IconTo Previous Page
To Previous Page IconTo Previous Page
Loading...
AED9101D
I3563-1.0 en 27
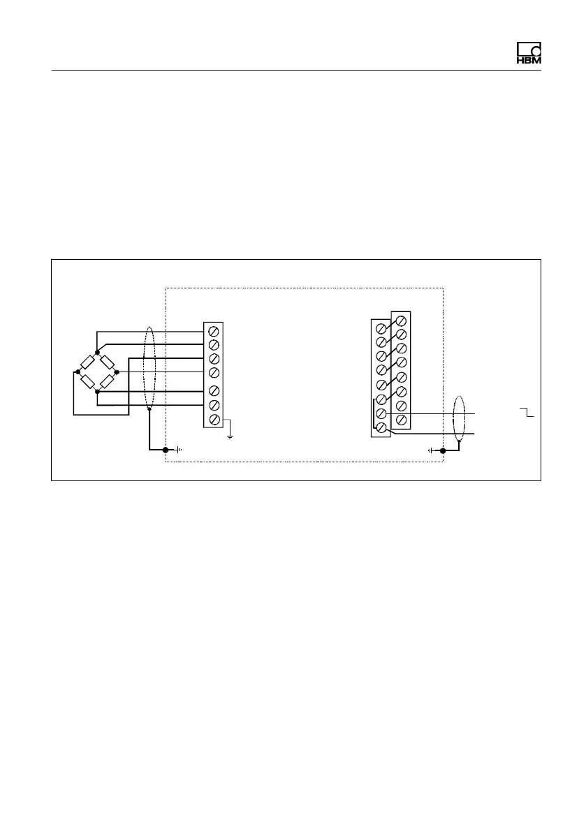
6.6 Trigger input
When using AD103C, you can connect an external
sensor (light barrier, contact, etc.), to the trigger input, to
enable you to use the trigger measurement function (see
AD103C operating manual). Use command TRC to activ-
ate the input as an external trigger. Leave the input unas-
signed, if you do not need it.
AED9101D
Trigger
GND
TE1
TE4
1
2
16
1
15
7
Fig. 6.12 Trigger input
The trigger input GND is connected to the supply voltage
GND.
The trigger input has the following properties:
Quiescent level Low
Active edge
High
> Low
High level 2 30 V
Low level 0 1V
Input current 3mA (when U
v
= 30V), 10k input resist-
ance

Other manuals for HBM AED9101D

Related product manuals