EasyManua.ls Logo

HiDew RSO - Dimensional Drawings; 10.1 RSO - RSE 020

HiDew RSO
52 pages
Print Icon
To Next Page IconTo Next Page
To Next Page IconTo Next Page
To Previous Page IconTo Previous Page
To Previous Page IconTo Previous Page
Loading...
USER MANUAL - rev 10
RS Dehumidifiers for radiant systems
35 - 52
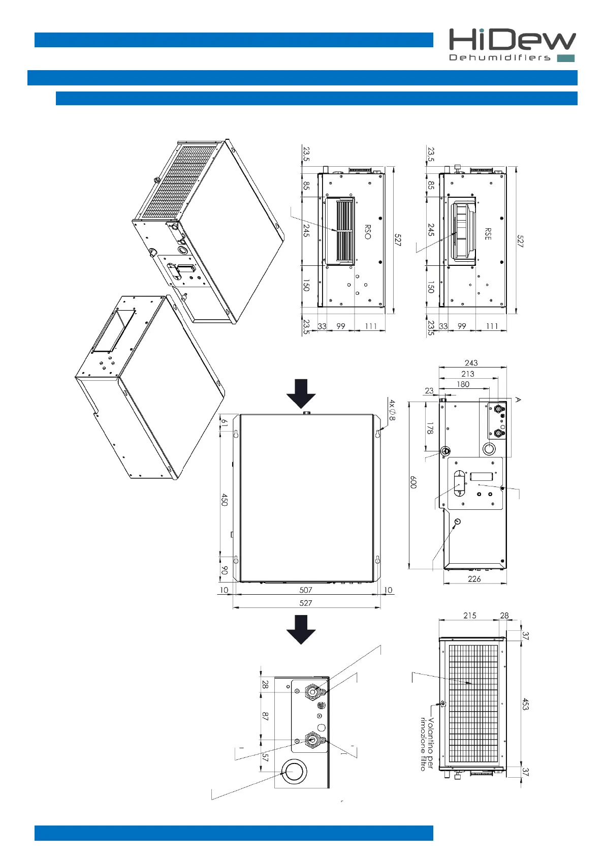
10 DIMENSIONAL DRAWINGS
10.1 RSO RSE 020
10.1.1 RSO RSE 020 (all versions)
Condensate drain
Control
Potentiometer
(only RSE)
Electrical Supply
Air supply
TOP VIEW
Air supply
Air return filter
Water inlet from radiant system
1/2" Gas female (A-I)
Hydraulic circuit
air vent valve
Water outlet to radiant
system 1/2" Gas female
(isothermal version A)
Water outlet to radiant
system 1/2" Gas female
(hybrid version I)
DETAIL A
SCALE 1:3

Related product manuals