EasyManua.ls Logo

HT EASYTEST - Theoretical; Continuity of Protective Conductors

HT EASYTEST
112 pages
Print Icon
To Next Page IconTo Next Page
To Next Page IconTo Next Page
To Previous Page IconTo Previous Page
To Previous Page IconTo Previous Page
Loading...
EASYTEST-COMBI519
EN - 97
12. THEORETICAL APPENDIXES
12.1. CONTINUITY OF PROTECTIVE CONDUCTORS
Check the continuity of:
Protective conductors (PE), main equalizing potential conductors (EQP), secondary
equalizing potential conductors (EQS) in TT and TN-S systems
Neutral conductors having functions of protective conductors (PEN) in TN-C systems.
This test is to be preceded by a visual check verifying the existence of yellow-green
protective and equalizing potential conductors as well as compliance of the sections used
with the standards requirements.
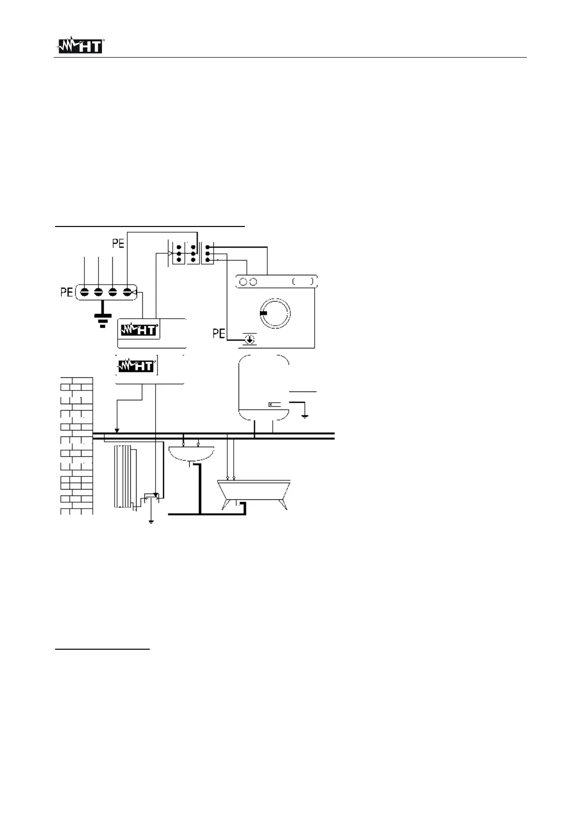
Parts of the system to be checked
Connect one of the test leads to the
protective conductor of the socket
and the other to the equalizing
potential node of the earth
installation.
Connect one of the test leads to the
external mass (in this case the water
pipe) and the other to the earth
installation using, for example, the
protective conductor of the closest
socket.
Fig. 36: Examples for continuity measurements on conductors
Check the continuity among:
Earth poles of all the plug sockets and earth collector or node
Earth terminals of class I appliances (boilers, etc.) and earth collector or node
Main external masses (water tubes, gas pipes, etc.) and earth collector or node
Additional external masses between each other and to earth terminal.
Allowable values
The standards do not require the measurement of continuity resistance and the
comparison of the results with limit values. The standards simply require that the
instrument in use warns the operator if the test was not carried out with a current of at
least 200mA and an open-circuit voltage ranging from 4 to 24V. The resistance values
may be calculated according to the sections and lengths of the conductors under test. In
general, if the instrument detects values of some ohms, the test may be considered as
successful.

Table of Contents

Related product manuals