EasyManua.ls Logo

Hyster F007 - Torque Chart; Maintenance

Hyster F007
48 pages
Print Icon
To Next Page IconTo Next Page
To Next Page IconTo Next Page
To Previous Page IconTo Previous Page
To Previous Page IconTo Previous Page
Loading...
Maintenance 5000 SRM 969
TORQUE CHART
Table 1. Torque Chart
Item to be Torqued Torque Value
Twist Lock Cylinder Assembly Screws 38 N•m (28 lbf ft)
Stop Cylinder Assembly Screws 38 N•m (28 lbf ft)
Stop Cylinder Piston Securing Nut 60 N•m (44 lbf ft)
Extension Cylinder Piston Securing Nut 450 N•m (332 lbf ft)
Extension Cylinder Gland Screws 60 N•m (44 lbf ft)
Sideshift Cylinder Piston Securing Nut 800 N•m (590 lbf ft)
Sideshift Cylinder Gland Nut 800 N•m (590 lbf ft)
Standard Hardware See 8000 SRM 231
Container Hook Securing Nut 110Nm(81lbfft)
Maintenance
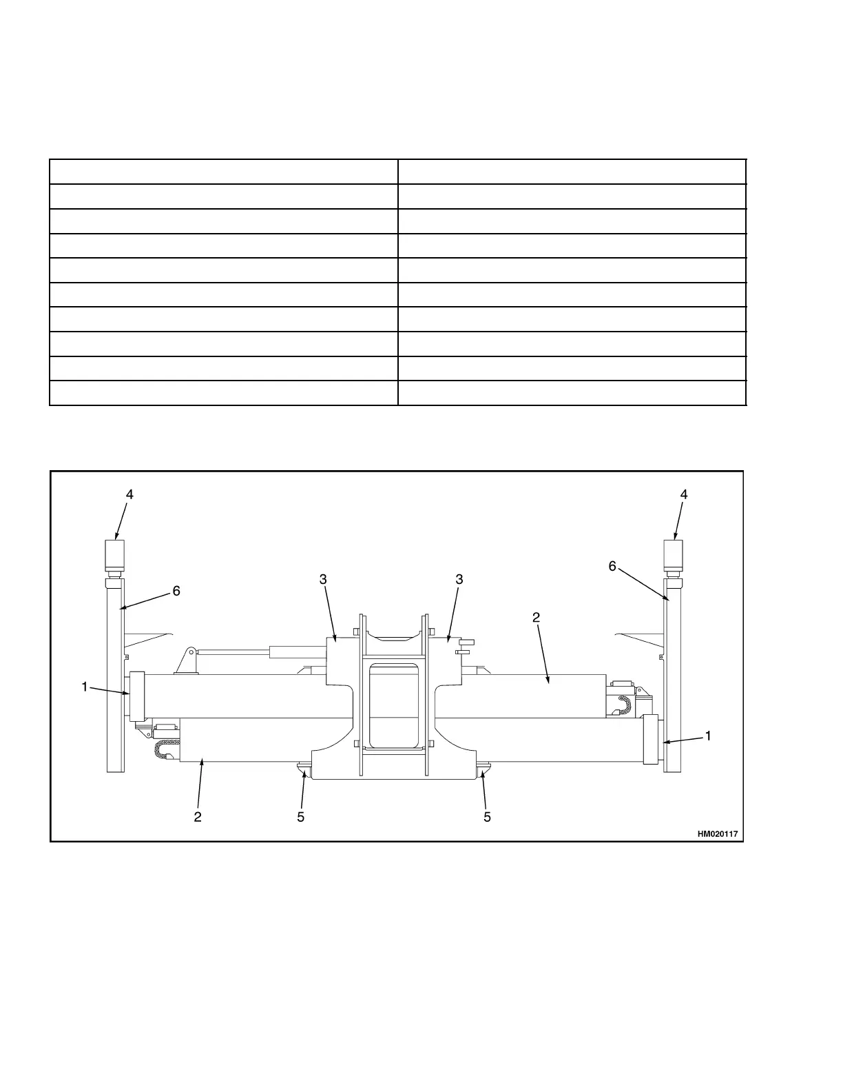
Figure 14. Maintenance Points
22

Related product manuals