EasyManua.ls Logo

Immergas EOLO Mini S - Boiler Installation and Flue Systems; Installation Requirements, Dimensions, and Connections

Immergas EOLO Mini S
27 pages
Print Icon
To Next Page IconTo Next Page
To Next Page IconTo Next Page
To Previous Page IconTo Previous Page
To Previous Page IconTo Previous Page
Loading...
IE
ES
101
CZ
HU
SL
HR
PL
IRELAND
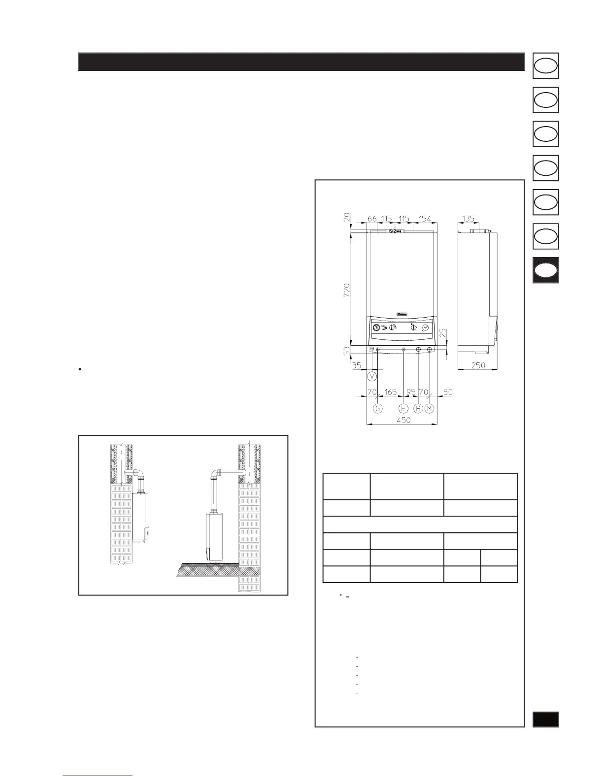
Height
(mm)
Width
(mm)
Depth
(mm)
793
450
250
Couplings
Gas
Water
Heating
G
E
R
M
3/4”*
1/2”
3/4”
3/4”
e appliance must be connected to a heating cir cuit and
domestic water distribution circuit in cor re spond ence to per-
formance and power spec i ca tions. It must also be installed
in an ambient temperature that does not fall below 0°C, and
must not be ex posed to atmospheric agents.
Main dimensions.
Key:
G
-
Gas supply
E
-
Domestic water inlet
R
-
System return
M
-
System delivery
V
-
Electrical connection
BOILER INSTALLATION
Warnings.
Immergas gas appliances must be installed ex clu sive ly by a
professionally quali ed and authorised technician.
Installation must be performed in compliance with standards,
current legislation and in observance with local technical
standards ac cord ing to a professional code of practice.
Before installing the appliance, ensure that it is de liv ered
in perfect condition; if in doubt, contact the supplier im-
mediately. Packaging materials (staples, nails, plastic bags,
expanded polystyrene etc.) con sti tute a hazard and must be
kept out of the reach of children.
If the appliance must be installed inside or between other
cabinets or items of furniture, ensure that su cient space
is left for maintenance; a clearance of 2÷3 cm between the
boiler casing and the sides of the cabinet is recommended.
Keep all ammable objects well away from the appliance
(paper, cloths, plastic, polystyrene, etc.).
In the event of malfunctions, faults or incorrect op er a tion,
switch the appliance o immediately and contact a quali ed
technician (e.g. from the Immergas Service centre to ensure
use of original spare parts). Never attempt to modify or repair
the appliance alone.
Failure to observe the above implies personal re spon si bil i ty
and renders the guarantee null and void.
Installation standards: these boilers are designed exclusively
for wall-mounted installation. e wall surface must be
smooth, i.e. without any protrusions or cavities enabling
access to the back part. ey are NOT designed for in-
stallation on plinths or  oors (see  gure).
Caution
: wall installation of the boiler on the wall must
guarantee a stable and e cient support for the generator. e
plugs supplied standard with the appliance ensure adequate
support only if inserted correctly (according to technical
standards) in walls made of solid or semisolid bricks. In
case of walls made from bricks or cavity blocks, partitions
with limited static properties, or in masonry other than that
indicated, carry out a preliminary static test of the support
system. ese boilers are used to heat water to below boil ing
temperature in atmospheric pressure.
*
=
the boiler has a 90 deg. gas cock with 3/4" connections
and diam. 18 mm.  tting to be welded
YES
NO

Related product manuals