EasyManua.ls Logo

Immergas SUPER TRIO - Hydraulic Diagram with Magis Pro - Magis Pro V2 Internal Unit

Immergas SUPER TRIO
56 pages
Print Icon
To Next Page IconTo Next Page
To Next Page IconTo Next Page
To Previous Page IconTo Previous Page
To Previous Page IconTo Previous Page
Loading...
36
INSTALLERUSER
MAINTENANCE TECHNICIAN
1
7
6
3
4
5
9
13
2
12
11
14
10
8
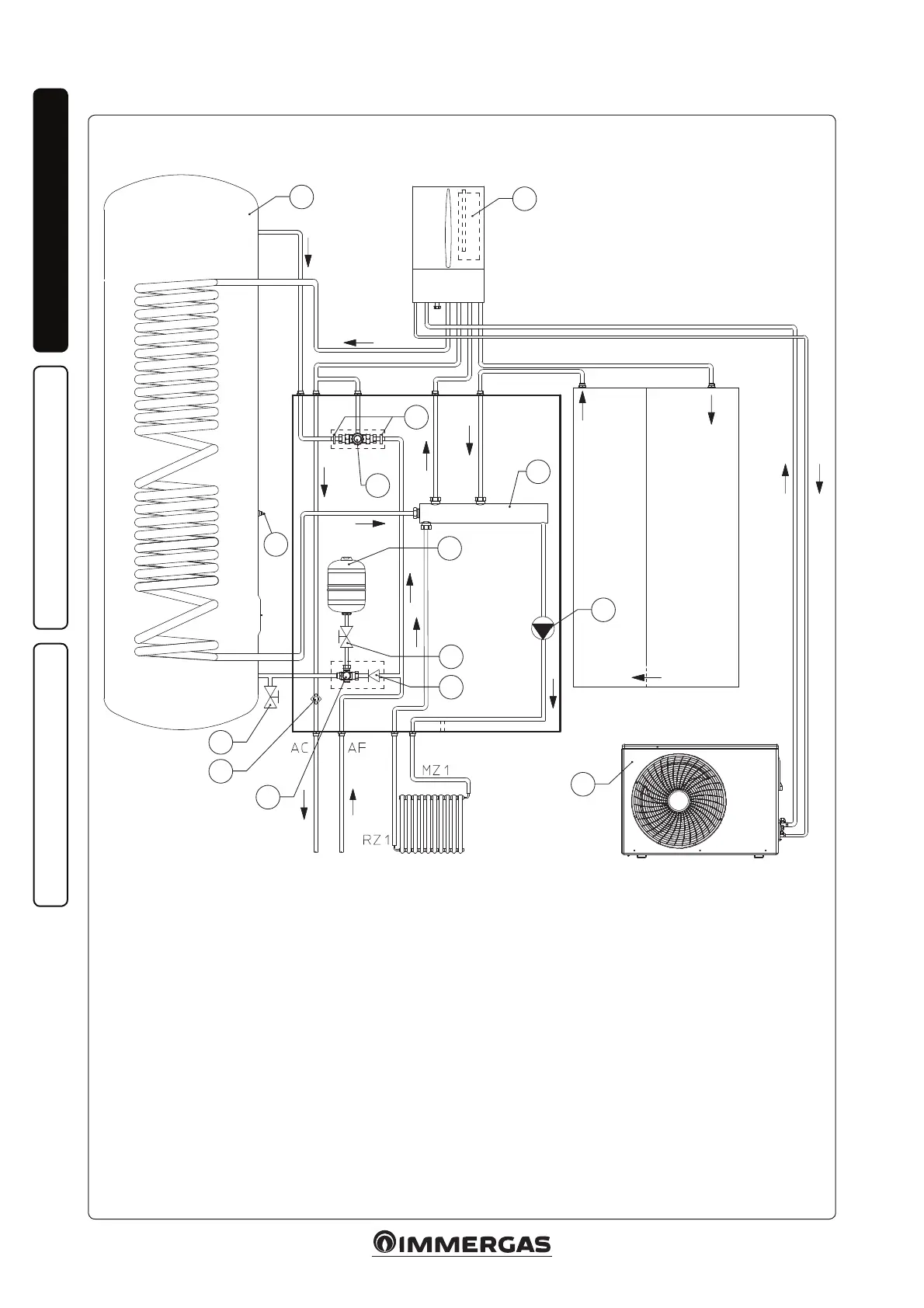
1.22 HYDRAULIC DIAGRAM WITH MAGIS PRO  MAGIS PRO V2 INTERNAL UNIT.
8 - DHW probe
9 - Direct zone pump
10 - One-way valve
11 - 8 bar safety valve
12 - Antifreeze thermostat
13 - Storage tank draining cock / tap
14 - Domestic hot water vessel shut-o
cock
AC - Domestic hot water outlet
AF - Domestic cold water inlet
MZ1 - High temperature system ow
RZ1 - High temperature system return
Key:
1 - Storage tank / Cylinder
2 - Condensing unit
3 - Hydraulic manifold
4 - 16 L DHW (Domestic hot water)
expansion vessel
5 - Magis Pro
6 - Mixing valve lter
7 - DHW circuit mixing valve
44

Table of Contents

Other manuals for Immergas SUPER TRIO

Related product manuals