EasyManua.ls Logo

Immergas VICTRIX Superior TOP 32 E - Separator Kit Installation

Immergas VICTRIX Superior TOP 32 E
36 pages
Print Icon
To Next Page IconTo Next Page
To Next Page IconTo Next Page
To Previous Page IconTo Previous Page
To Previous Page IconTo Previous Page
Loading...
C83
C43C53
1
4
7
9
5
5
6
7
8
3
2
S
A
12 - IE
INSTALLERUSER
MAINTENANCE TECHNICIAN
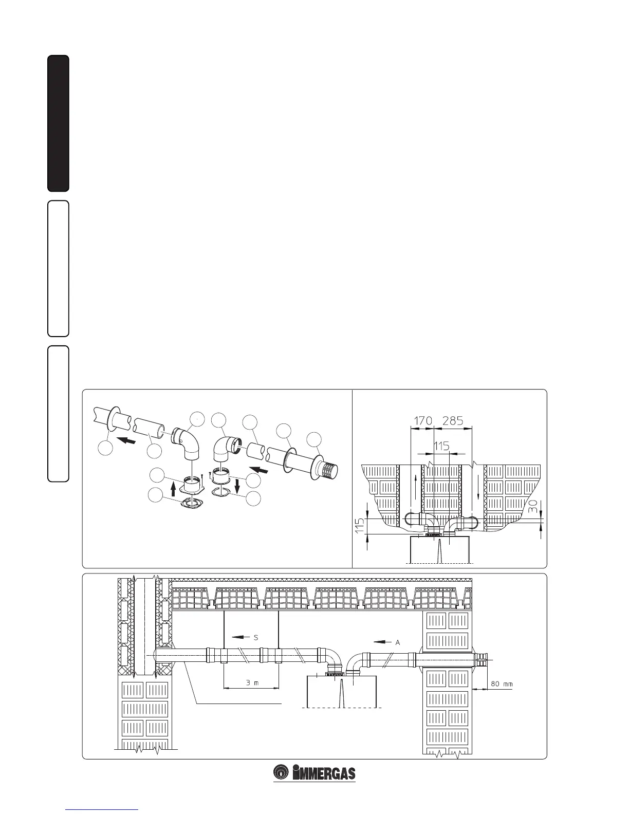
e kit includes:
N° 1 - Exhaust gasket (1)
N° 1 - Flange gasket (2)
N° 1 - Female intake ange (3)
N° 1 - Female exhaust ange (4)
C83
Fig. 1-23
C53
Fig. 1-22Fig. 1-21
N° 2 - Bend 90° Ø80 (5)
N° 1 - Intake terminal Ø80 (6)
N° 2 - Internal white wall sealing plates (7)
N° 1 - External grey wall sealing plate (8)
N° 1 - Exhaust pipe Ø80 (9)
1.12 SEPARATOR KIT INSTALLATION.
Type C configuration, sealed chamber and
fan assisted.
Separator kit Ø80/80. is kit allows the air
intake from outside the home and the flue
exhaust into a chimney or ue by means of the
separation of the ue exhaust pipes and air intake.
Combustion products are expelled from pipe (S)
(in plastic, so as to resist acid condensate). Air is
taken in through duct (A) for combustion (this
is also in plastic). e intake pipe (A) can be
installed either on the right or le hand side of
the central exhaust pipe (S). Both ducts can be
routed in any direction.
Kit assembly (Fig. 1-21): install the ange (4)
on the central hole of the boiler, positioning the
gasket (1) (which does not require lubrication).
Position it with the circular projections
downwards in contact with the boiler ange
and tighten using the hex screws with flat
end present in the kit. Remove the at ange
present in the lateral hole with respect to the
central one (according to needs) and replace it
with the ange (3), positioning the gasket (2)
already present in the boiler and tighten using
the supplied self-threading screws. Fit the male
end (smooth) to the bends (5) in the female end
of the anges (3 and 4). Fit the intake terminal
(6) with the male section (smooth) in the
female section of the bend (5) up to the stop,
ensuring that the internal and external wall
sealing plates are tted. Fit the exhaust pipe
(9) with the male end (smooth) to the female
end of the bend (5) up to the stop; making sure
that the internal wall sealing plate has been
tted, this will ensure sealing and joining of
the elements making up the kit.
Installation clearance (Fig. 1-22). e minimum
installation clearance measurements of the
Ø80/80 separator terminal kit have been stated
in some limit conditions.
Extensions for Ø80/80 separator kit. The
maximum vertical straight length (without
bends) that can be used or Ø80 intake and
exhaust pipes is 41 metres, independently to
whether they are used for intake or exhaust.
e maximum horizontal straight length (with
bend in suction and in exhaust) that can be
used or Ø80 intake and exhaust pipes is 36
metres independently to whether they are used
for intake or exhaust.
N.B.: to favour the removal of possible condensate
forming in the exhaust pipe, tilt the pipes towards
the boilers with a min. slope of 1.5%. (Fig. 1-23).
Minimum slope 1.5 %

Table of Contents

Related product manuals