EasyManua.ls Logo

Inovance MD300 Series - Inverter Wiring Diagrams

Inovance MD300 Series
96 pages
To Next Page IconTo Next Page
To Next Page IconTo Next Page
To Previous Page IconTo Previous Page
To Previous Page IconTo Previous Page
Loading...
Chapter 3 Mechanical and Electrical Installation
-29-
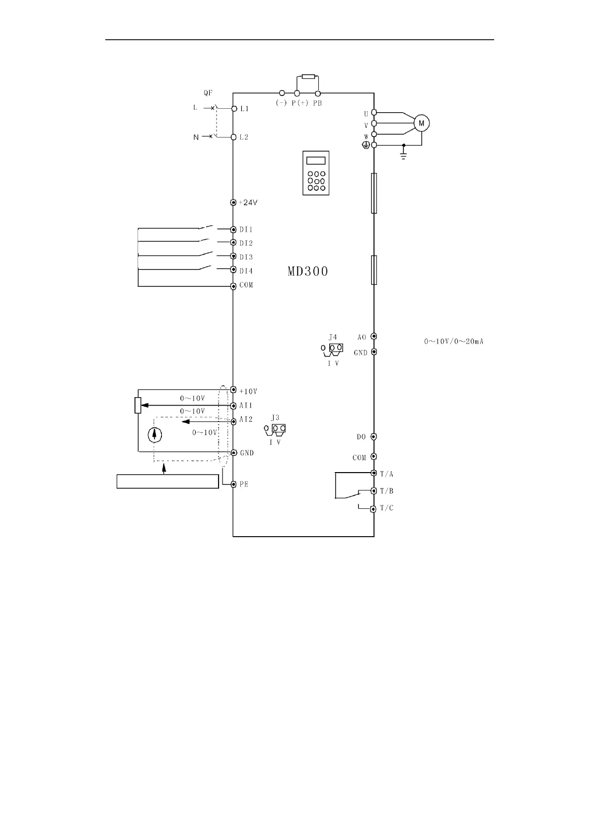
3. Connections
Brake Resistor
Single-phase Input Power
Earth Connection
External Keyboard Interface
Digital Output Terminal
Analog Output:
When current reference
of 4 to 20mA is selected
Frequency
Source:
Frequency
Source:
Frequency
Source:
Multifunctional Digital
Input Terminal 1
Multifunctional Digital
Input Terminal 2
Multifunctional Digital
Input Terminal 3
Multifunctional Digital
Input Terminal 4
Multifunctional Expansion Card
Fig.3-4 Single-phase 220V Inverter Wiring
Note: The figure is applicable to MD300S0.4
ǃ
MD300S0.7
ǃ
MD300S1.5
ǃ
MD300S2.2
efesotomasyon.com

Related product manuals