EasyManua.ls Logo

Jackson 200B - Control Box Assembly

Jackson 200B
57 pages
Print Icon
To Next Page IconTo Next Page
To Next Page IconTo Next Page
To Previous Page IconTo Previous Page
To Previous Page IconTo Previous Page
Loading...
28
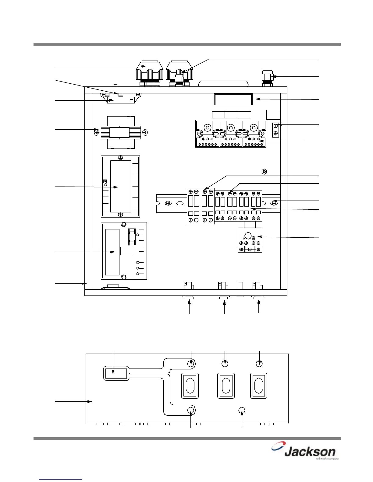
SECTION 6: PARTS SECTION
CONTROL BOX ASSEMBLY
200 Series Technical Manual
7610-100-45-00 Rev. E (02/10/2006)
Jackson
200 SERIES
WASH/RINSE
TEMPERATURE
WASH
RINSE/FILL
WASH
OFF
RINSE
MANUAL MODE
MANUAL
OFF
AUTO
CYCLE MODE
OFF
ON
POWER
HEATER HIGH LIMIT
°F
GND
L
1
2
L
3
L
USE COPPER
CONDUCTORS ONLY
31
19
8
11
33
10
12
1393, 4
32
25
28, 5
26, 27
29, 30
2, 25
1
14
16
7, 6
15
17
21, 23, 24
20, 18
22
34
35

Related product manuals