EasyManua.ls Logo

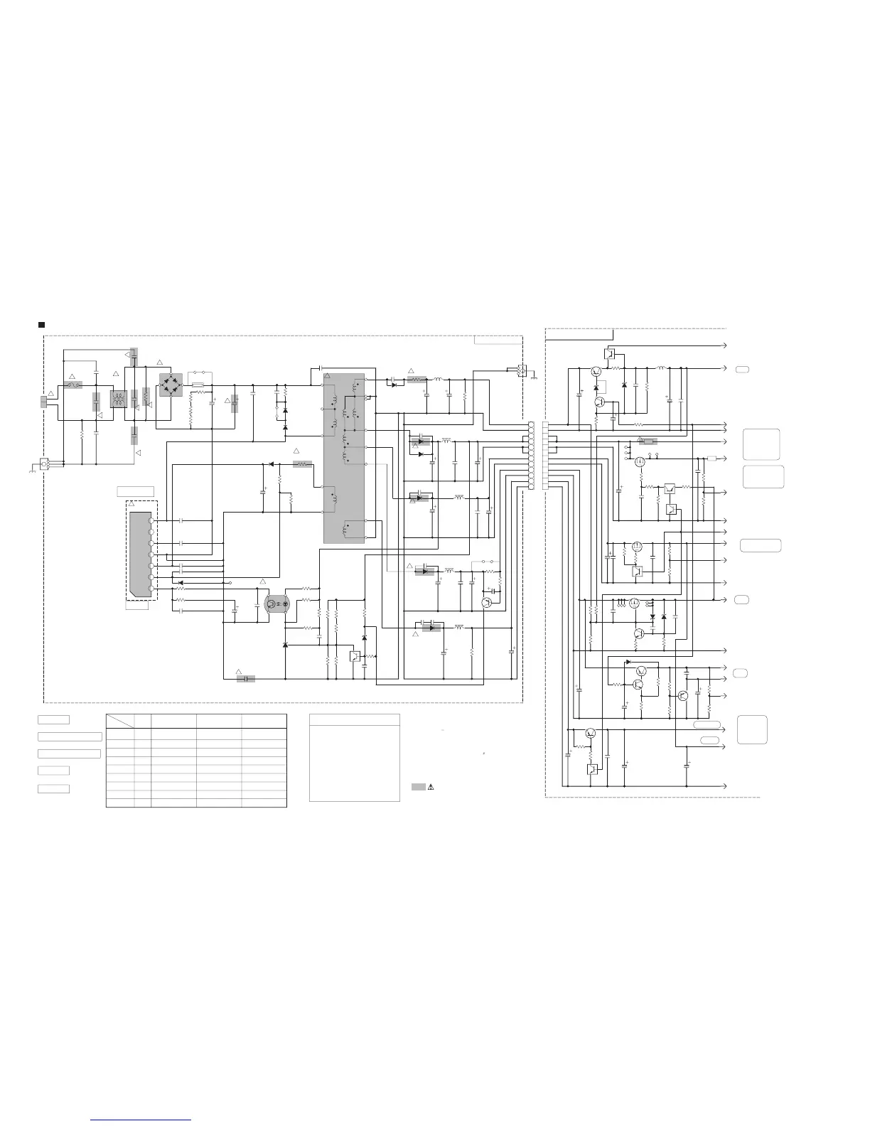
JVC DD-8E - Stabdard Schematic Diagrams; Primary Section

JVC DD-8E
89 pages
Print Icon
To Next Page IconTo Next Page
To Next Page IconTo Next Page
To Previous Page IconTo Previous Page
To Previous Page IconTo Previous Page
Loading...
2-2
Parts are safety assurance parts.
When replacing those parts make
sure to use the specified one.
Stabdard schematic diagrams
GND
T9901
QQS0393-001
!
D9902
20NFA60-FC5
0.1/50
C9803
D9401
UF202G-F26
!
220p/2000
C9801
16
PC991
PC123Y22FZ
!
32
14
39/50
C9602
2.7K
R9706
EP961
QNZ0136-001Z
123
22u
L9401
IC981
MIP4170MDSLJ
!
1234567
D9601
FR104S-T5
D9802
MA704A-X
820/16
C9404
1.5/25
C9302
300
R9701
0.068/AC275V
C9908
!
0.1/50
C9802
CN991
QGA7901F2-02
!
2
1
D9301
UF202G-F26
!
!
220/16
C9202
D9801
1SS244-T2
NI
D9701
C9910
NI
22/50
C9807
R9902
NI
4.3K
R9802
560/25
C9203
NI
Q9701
NI
R9708
0.22u
L9601
0.0022
/2000
C9906
FR
R9601
10
(1/4W)
!
NI
R9710
22/50
C9603
22u
L9501
W491
QJK048-120802-E
1
2
3
4
5
6
7
8
9
10
11
12
22uL9301
4.7K
R9707
NI
R9705
220p/50
C9401
47/400
C9911
!
NI
C9701
10
C9902
NI
100p/50
C9501
EP991
QNZ0136-001Z
123
10u
L9201
0.001/AC250V
C9907
!
7.5k
R9709
33k
R9201
1K
R9704
0.001/AC250V
C9703
!
C9903
NI
0.1/50
C9930
11
1000/10
C9502
0.1/50
C9806
0.001/AC250V
C9909
!
D9010
DI106
!
3
1
4
2
L9901
QQR0908-001
!
1
32
4
220p/50
C9301
13
47/50
C9808
15
220p/50
C9201
12
FR
R9803
27
(1/4W)
!
220/16
C9303
14
NI
R9703
D9501
SB360-F82
!
47k
R9805
15p/50
C9804
68k
R9804
NI
C9905
NI
C9904
D9201
FR104S-T5
D9903
20NFA60-FC5
TH991
NI
470/10
C9503
220/16
C9403
100p/1000
C9601
17
0.068/AC275V
C9901
!
3.3kR9801
0.1/16
C9504
330p/50
C9805
820/16
C9304
4.7K
R9702
1.5/25
C9402
R9901
3.3M
!
R9904
1M
R9905
1M
R9906
1M
R9907
1M
B1299
NI
B1332
IC971
KIA431A-T
1
23
220p/50
C9204
D9502
SB360-F82
R9602
150K
MF
R9301
NI
Q9301
NI
R9302
NI
C9305
NI
R9303
NI
B1631
F9901
!
68k
R9903
OMF 2W
9V
5V
12V
6V
VDISP
3
LVA10677-A2
HS991
*
TR
1
9V
4
S
2
6V
POWER PWB
SWITCHING
FB
9
12V
REG.IC
5V
7
D
VDD
VCC
*
*
*
LV40057-001A
Primary GND.
1.7V
3.4V
19.8V
5.9V
0.67V 4.73V
3.69V
2.476V
12.6V
10.8V
6.4V
4.95V
ALL CAPACITANCE VALUES ARE IN F.
ALL INDUCTANCE VALUES ARE IN H.
ALL RESISTANCE VALUES ARE IN OHMS.
Q4921
KTA1273/Y/-T
SAFETY3
Q4972
KTC3875/YG/-X
R4961
10
27k
R4963
1k
R4921
10u
L4961
4.3K
R4962
MGND
FLGND
A6V
GND2
M9V
0.1
C4941
R4972
560
C4962
NI
10k
R4951
S5V
Q4962
KTC3875/YG/-X
330k
R4953
R4974
750
100/16
C4922
Q4952
KRA104S-X
R4975
270
1.3k
R4922
100/16
C4925
D4961
NI
Q4973
KTA1273/Y/-T
1.5/25
C4921
US5V
C4973
0.033
GND
A12V
R4977
33K
Q4941
RTR030P02-X
D
G
S
0.1/16
C4952
CP495
ICP-N15-T
!
C4974
100/16
FLPOWER
C4964
0.1
C4972
4.7/50
SW6V
NI
C4971
Q4922
KRC103S-X
F+
Q4951
RSS090N03-X
D
G
S
R4971
2.2K
D4962
NI
FDVD
NI
C4963
10k
R4942
R4973
360
Q4942
KRC103S-X
22k
R4941
Q4963
KRA111S-X
Q4971
KTA1273/Y/-T
1k
R4954
VH
22k
R4952
CLIMIT1
0.1/16
C4951
Q4953
KRC104S-X
F-
Q4961
KTA1504/YG/-X
R4976
56K
R4955
56K
R4956
56K
SAFETY1
SAFETY2
R4943
56K
R4944
47K
NI
C4965
NI
C4953
NI
C4943
NI
C4926
NI
C4942
2
6
8
3
7
R4966
2.2K
CN901
QGA2536C1-12
1
2
3
4
5
6
7
8
9
10
11
12
C4975
22/50
C4933 NI
NIR4933
Q4932
KTC3875/YG/-X
D4964
MTZJ9.1A-T2
22KR4931
39k
R4932
4.7k
R4935
1k
R4934
Q4931 RSS090N03-X
D
G
S
D4963
NI
C4932
NI
C4931
NI
D4965
1SS133-T2
NI
CP496
REMOCON
opt in/out
HP_AMP
FL
VOLIC
HP_MUTE
12.6V
D6V
MIX
BUFFER
D4V(HDMI)
TUNER
MICOM
VH
STB_LED
M9V
S5V
AGND
D2V
SW6V(HDMI)
AUX_MUTE
A6V
V5V
SWA12V
(1/2)
LVA10677-A1
UJ:USA MILITALY BASE
Ver.
120V 60Hz
UT/US/UX/UW
(T1AH 250V)
QMFZ059-1R0-E
(1A-250V)
(2,A)
A :AUSTRALIA
QEZ0665-476
B :GREAT BRITAIN
Ver.A
240V 50Hz
QMFZ059-1R0-E
REF No.
(5,B)
QEZ0688-107
QETM2DM-107
US :SINGAPORE
A/B/E/EN/EV/EE/UF
QMFZ059-2R5-E
110-240V 50/60Hz
ADDRESS
230V 50Hz
(T2.5AH 250V)
Ver.UT/US/UX/UW
UX:SAUDI ARABIA
J
UT:TAIWAN
*F9901
(47/400)(100/200)
UG:TURKEY/EGYPT/SOUTH AFRICA
J :U.S.A.
UY:ARGENTINE
Ver.B/E/EN/EV/EE
C :CANADA
UN:INDONESIA
(100/400)
*C9904
UW:BRAZIL/MEXICO/PERU
VERSION CODES
(4,B)
Ver.J
*C9911
---- ----
----
TO MICOM BLOCK
LVA10677-A1 (2/2)
(8,C)*D9502
NOT USE
NOT USE USE
Ver.UF
220V 50Hz
UF:CHINA
(B1168)
"NI" MARKING PART IS NOT USED.3.
OR OSCILLOSCOPE WITHOUT INPUT SIGNAL.
2.UNLESS OTHERWISE SPECIFIED.
NOTES:
P IS pF.
1.VOLTAGES ARE DC-MEASURED WITH A DIGITAL VOLT METER
CONDITION POWER-ON.
u IS uH.
SOURCE:DVD/CD.DVD STOP.
1/16W, 5%.
39.2V
30.7V
38.5V
0V
30.6V
4.8V
4.3V
4.85V
4.82V
9.4V
9.4V
9.5V
4.3V
0V
6.4V
6.4V
4.3V
0V
10.8V
9.7V
11.4V
0.6V
1.2V
7V
10.7V
10.2V
4.3V
4.8V
2.6V
1.9V
12.5V
11.8V
4.3V
Primary section

Table of Contents

Related product manuals