EasyManua.ls Logo

JVC DD-8E - Speaker Control Section

JVC DD-8E
89 pages
Print Icon
To Next Page IconTo Next Page
To Next Page IconTo Next Page
To Previous Page IconTo Previous Page
To Previous Page IconTo Previous Page
Loading...
2-13
Parts are safety assurance parts.
When replacing those parts make
sure to use the specified one.
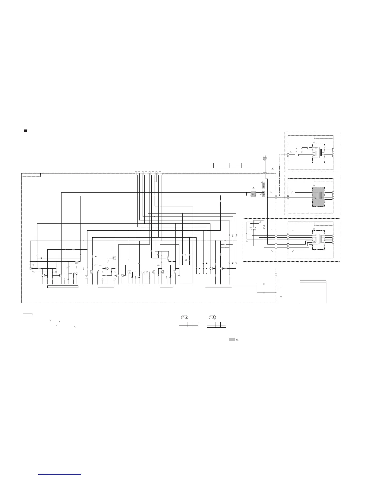
Speaker control section
4.7/50
C1101
12K
R1211
D1204
1SS133-T2
Q1301
KRA104S-X
Q1202
KTC3875/YG/-X
D1209
1SS133-T2
Q1401
KRC104S-X
Q1407
KRC104S-X
4.7K
R1111
3.3K
R1410
22K
R1412
Q1403
KTC3875/YG/-X
Q1305
KTC3875/YG/-X
22K
R1406
1K
R1407
D1203
1SS133-T2
D1202
1SS133-T2
100K
R1301
10/50
C1302
D1205
1SS133-T2
100
R1303
100
R1404
D1302
1SS133-T2
100K
R1102
4.7K
R1308
1K
R1401
1K
R1106
100K
R1205
1K
R1105
0.0047/250
C1001
100K
R1306
D1402
1SS133-T2
100K
R1101
R1206
33K
KRA104S-X
Q1101
220/16
C1401
D1201
1SS133-T2
22K
R1208
D1101
1SS133-T2
22K
R1207
10K
R1304
22K
R1402
R1108
22K
Q1105
KRC109S-X
R1110
NI
4.7/50
C1103
10K
R1305
D1208
1SS133-T2
Q1102
KTC3875/YG/-X
Q1404
KRA102S-X
75K
R1403
R1104
4.7K
47/25
C1303
D1303
MTZJ30B-T2
R1109
NI
22/50
C1301
10K
R1413
D1206
1SS133-T2
Q1406
KTC3875/YG/-X
Q1103
KTC3875/YG/-X
Q1302
KTC3875/YG/-X
D1002
1SS133-T2
D1305
MTZJ15B-T2
D1401
1SS133-T2
1K
R1204
75K
R1405
4.7/50
C1402
D1103
MTZJ5.1B-T2
D1304
1SS133-T2
D1104
1SS133-T2
D1105
1SS133-T2
Q1303
KTC3875/YG/-X
2.2K
R1409
Q1402
KTC3875/YG/-X
Q1304
KTA1504/YG/-X
10K
R1107
Q1405
KTC3875/YG/-X
22K
R1209
10K
R1307
D1102
1SS133-T2
4.7K
R1103
22K
R1203
D1106
MTZJ30B-T2
Q1104
KTA1504/YG/-X
D1301
1SS133-T2
220K
R1408
RY101
QSK0142-001
31
42
3.3K
R1411
CN101
QGA7901C1-02
1
2
D1207
1SS133-T2
0.01
C1102
C1012
0.01
EP102
LV43391-001A
EP101
LV43391-001A
Q1201
KTC3875/YG/-X
12K
R1202
10K
R1201
NI
R1302
12K
R1210
CN102
QGA7901C1-02
1
2
CN105
QGB2510K2-16
1 AC ON
2 +VH
3-VH
4 +VL
5-VL
6 SAFETY
7 +A12V
8 -A12V
9 SP RELAY
10 PROTECT
11 GND
12 GND
13 GND
14 +D12V
15 DC DETECT
16 P.ON CONT
D1001
1SS133-T2
S1001
QSW0838-001
8765
1234
CN103
QGA7901C1-04
1
2
3
4
CN104
QGA7901C1-03
1
2
3
C1011
0.01
WC101
QZW0112-001
330
R1001
OMF
1W
WC102
QZW0112-001
WC103
QZW0112-001
D1306
MTZJ15B-T2
D1307
MTZJ15B-T2
4.7K
R1309
4.7K
R1310
FC101FC102FC104 FC103
15
6
141312 17
B3899
11
W905
WJK0123-003A-E
1
2
109
B3749
T1001
QQT0525-003
142
8
W951
QJK015-051900-E
1
2
3
4
5
37
16
5
T1001
QQT0525-002
142
15
5
13 1411 12109
7
816
W902
WJK0123-003A-E
1
2
63
W951
QJK015-051900-E
1
2
3
4
5
17
4
W951
QJK015-051900-E
1
2
3
4
5
567
1615141312 1711109
T1001
QQT0525-003
12
8
3
W903
WJK0237-001A-E
1
2
3
4
W904
WJK0236-001A-E
1
2
3
9.4V
-20.5V
0V
0V
POWER CONTROL&PROTECTOR
0V
3.7V
0V
0V
-20.5V
0V
0V
0.1V
0V
PROTECTOR
0.6V
-20.5V
MUTE CONTROL
0V
0.6V
0V
0V
LOW VOLTEAGE DETECTOR
0V
LVA10684-A2
!
!
A127V
TF
A17V
A0V
B127V
B110V
B0V
110V127V220V-240V
QMF51W2-2R0-J8
F1002 T2AL
!
!
!
12.2V
(LVS10526-001A)
TO AMP (CN304)
E/B/EN/EV/EE/A/UF
F1001
F1001
US/UT/UX/UW
4A/125V T2AL/250V T4AL/250V
J
B : GREAT BRITAIN
VERSION CORDS
E : CONTINENTAL EUROPE
EN: NORTH EUROPE
EV: POLAND/CZECH/SLOVAKIA/HUNGARY
A : AUSTRALIA
EE: RUSSIA
US: SINGAPORE
UT: TAIWAN
UX: SAUDI ARABIA
UW: BLAZIL/MEXICO/RERU
UF: CHINA
J : U.S.A./CANADA
!
!
!
!
TO CN102
QMF51W2-2R0-J8QMF51U1-4R0-J8 QMF51W2-4R0-J8
MARK
TO MAINS PLUG
A Ver.ONLY USE
UF Ver.
TO AMP (CN302)
!
A/UF Ver.
LVA10684-A3
!
ONLY USE
(LVS10526-001A)
LVA10684-A3
QQT0525-001
!
T1001 : E/B/EN/EV/EE Ver. QQT0525-002
T1001 : J Ver. QQT0525-001
TO AMP (CN302)
(LVS10526-001A)
J/E/B/EN/EV/EE Ver.
!
LVA10684-A3
!
TO AMP (CN302)
(LVS10526-001A)
US/UT/UX/UW Ver.
!
!
0V
0V
0V 0V
0V
0.8V
12.3V
12.2V
12.1V
12.3V
11.8V
11.8V
0.4V
12.0V
6.6V
0.8V
20.5V
20.5V
0V
0V
0V
0V 0V
0V 0V 0V
0V
0V
12.2V
12.2V 12.2V
6.7V
6.3V
0V
0V
13.1V
0V
ALL CAPACITANCE VALUES ARE IN F(P=pF).
ALL CAPACITORS ARE CERAMIC CAPACITOR OR MYLAR CAPACITOR.
ALL E.CAPACITORS ARE SHOWN IN THE FORM OF CAPACITANCE(
F)/RATED VOLTAGE(V).
2.UNLESS OTHERWISE SPECIFIED.
1.VOLTAGES ARE DC-MEASURED WITH A DIGITAL VOLT METER WITHOUT INPUT SIGNAL.
CONDITION - CONNECTED CA-DD1/3/8 FUNCTION DVD STOP
NOTES
ALL RESISTANCE VALUES ARE IN OHM( ).
ALL INDUCTANCE VALUES ARE IN
H(m=mH).
RESISTORS ARE 1/16W
5% METAL GLAZE RESISTOR.
9.4V
41.0V
-41.0V
20.5V
-20.5V
12.2V
11.9V
-12.0V
0V
-20.2V
0V
0V
0V
12.5V
0V
12.3V
*
*
10K
KRC109S-X
47K 47K
R2R2
R2
R1R1
R1 R2R1
10K
47K 22K
KRC104S-X KRA102S-X
KRA104S-X 47K 47K
EXCEPT US/UT/UX/UW Ver.

Table of Contents

Related product manuals