EasyManua.ls Logo

JVC PD-35B50BJ - Analog Signal Pwb Circuit Diagram

JVC PD-35B50BJ
211 pages
Print Icon
To Next Page IconTo Next Page
To Next Page IconTo Next Page
To Previous Page IconTo Previous Page
To Previous Page IconTo Previous Page
Loading...
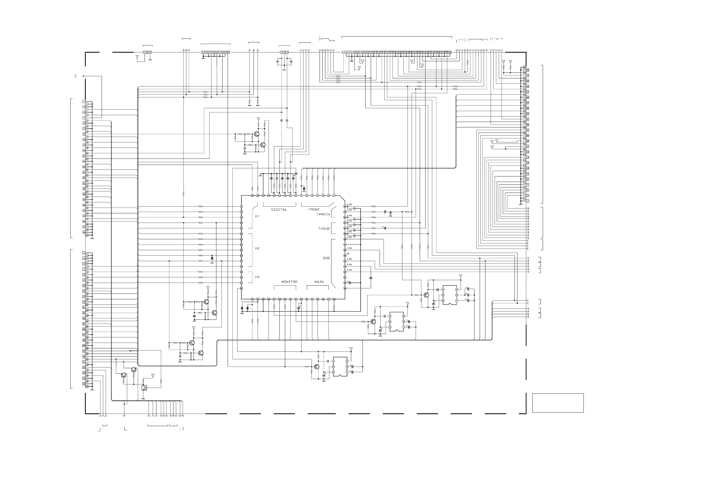
No. YA098
No. YA098 2-9 2-10
: NRSA63-0R0X
: 2SC3928A/QR/-X
NPN
0
: 2SA1530A/GR/-X
PNP
NOTE
NOTES) 1. Please refer to page 2-85 for voltages of this circuit diagram.
2. Please refer to page 2-89 for waveforms of this circuit diagram.
Q505
CN0J1
SUB_C
SUB_VY
R_SWSUB
L_SWSUB
R515
R519
C503
R526
R_SWMAIN
COMPR4
L_SWMAIN
Q511
MAIN_VY0
MAIN_C
D504
COMPB4
C506
COMY4
C505
SDA3B5
D43
SCL3B5
D503
R588
POW_LED
C504
R582
R583
R564
R584
CN0J2
Q512
MECA_SW0
HP_VOL
HP_DET
R541
Q508
CB510
IC503
C520
IC501
R589
D502
R531
C522
C523
R590
PC_DET
R578
R577
PC_R
CN00T
PC_G
C521
R534
R576
R537
CB509
CB508
CB507
PC_B
PC_HS
SELSW1
CN00A
SELSW2
R563
R562R561
C502
R560
R566
R565
Q506
R568
R567
PC_VS
R530
CB506
Q507
IC502
C515
C518
C519
R575
R574
R520
R521
R522
R528
R523
R524
C516
Q513
R527
R529
R573
Q509
IC504
C524
C526
C527
R581
R580
C525
R579
R535
C517
CN0UACN0UV
C513 C514
C510
Q501
R546
R545
R544
R538
R543
R542
R548
R547
Q502
R550
R549
C508
R536
Q503
R555
R554
R553R552
R551
R557
R518
R517
R516
RB507
R556
Q504
RB508
RB509
R559
C511 C512
R558
R540
C509
R569
RB510
R570
RB506
RB502
RB503
RB504
RB505
RB501
RB512 RB513
D43
R539
EUROR4
EUROL4
CN00F
HP_MUTE
HP_R
R585
R506
L_DIG
HP_L
REC_LED
R_DIG
A_MUTE
M_MUTE
DIMMER
R586
LOUT
ROUT
SUBWOUT
D501
C_DIG
Y_DIG
CPR1/RE1
CPY1/GR1
CPB1/BU1
D13_YS1
CENTIN
R505
R504
R503
R502
CPY3
R501
CPB3
CPR3
GR2
BU2
YS2
TVLINK
CB505
R533
R532
R571
R572
C501
CB504
CB503
CB502
R514
R513
R512
R511
R510
CB501
CENTIN
R509
R508
RB511
LIP_L
LIP_R
C507
CPB1
CPY1
CPR1
MAIN_R
MAIN_L
LOUT
SUBWOUT
ROUT
COMP_R
COMP_L
A_MUTE
RE2
SCL3A5
SDA3A5
AFT2
AFT1
MSP_RST
AGC
TU_ATT
R507
GND
GND
GND
D43
GND
GND
GND
GND
GND
GND
GND
GND
GND
RE2
GND
GND
GND
GND
GND
GND
GND
GND
GND
GND
GND
GND
EUROL4
EUROR4
CPY3
CPB3
CPR3
SLOW3
V3
L3
R3
UD_LOUT
UD_ROUT
CENTIN
R2
L2
S22/SLOW 2
TVLINK
EU_SDA0
BU2
GR2
YS2
V2
Y2
C2_RE2
S2
QGF0508C1-50W
/25
N
CH
/25
GND
GND
GND
GND
GND
GND
GND
GND
GND
GND
GND
GND
GND
GND
GND
GND
GND
GND
GND
GND
GND
GND
SUBWOUT
LOUT
ROUT
A_MUTE
SDA3B5
SCL3B5
SDA3B5
SCL3B5
S1DC
MON_C
MON_Y
MON_V
MON_L
MON_R
M_MUTE
S1
C1/RE1
Y1
V1
S21/SLW1
L1
R1
D3_YS1
CPR1/RE1
CPB1/BU1
CPY1/GR1
TV_ROUT
TV_LOUT
QGF0508C1-50W
B1
Y3
RV3
C3
S2-3
S-3
V4
LV4
Y4
RV4
C4
S2-4
S-4
LV5
V5
RV5
ADR YIN1
BIAS
CIN1
LOUT1
VOUT1
ROUT1
TRAP1
YOUT1
VGND
COUT1
LV5
V6
RV6
LTV
TV
RTV
CXA2069Q
QGF0508C1-40W
QGA2001C2-03V
/16
B1
B1
COMPR4GND
COMPR4
COMPB4GND
COMPB4
COMY4GND
COMY4
D43
GND
GND
STB3.3V
STB3.3V
BS_5V
STB_5V
POWERLED
MECA_SW
HP_VOL
HP_DET
S2_4
DIMMER
S4_DET
REC_LED
R4
GND
GND
GND
GND
GND
L4
V4
Y4
C4
HPL
LGND
HPR
RGND
HP_MUTE
9V/STB5V
9V/STB5V
GND
GND
SELSW1
SELSW2
GND
GND
PC_DET
PC_R
PC_G
PC_B
PC_HS
PC_VS
QGF0508C1-50W
N
MA8100/M/-X
V1
LV1
Y1
RV1
C1
S2-1
S-1
V2
LV2
Y2
RY2
C2
S2-2
S-2
V3
LV3SCL
SDA
AGND
DC_OUT
COUT3
LOUT3
YOUT3
ROUT3
VOUT3
VCC
LOUT2
V/YOUT2
ROUT2
TRAP2
COUT2
MUTE
S2-2
COMP_L
COMP_R
GND
GND
GND
GND
GND
GND
GND
GND
GND
GND
GND
LIP_R
LIP_L
GND
GND
GND
GND
GND
AGC
TV_V1
TV_L1/MAIN_L
TV_R1/MAIN_R
AFT1
TV_V2
9V
BS_A9V
TU_ATT
MSP_RST
SDA3A5
SCL3A5
SDA3B5
SCL3B5
AFT2
SUBWOUT
TV_L2/LOUT
TV_R2/ROUT
5V
BS_A5V
32V
NC
GND
U_R
GND
U_L
/16
GND
GND
GND
GND
GND
SLOW
V
Y
U
CV
OPEN
OPEN
10
OPEN
27p
10
OPEN
OPEN
OPEN
OPEN
220
1k
OPEN
OPEN
OPEN
47
220
OPEN
220
6.8k
220
220
6.8k
220
6.8k
6.8k
OPENOPEN
OPEN OPEN
18k
220
6.8k
220
OPEN OPEN
18k
OPEN OPEN
0
0
0
0
OPEN
OPEN
OPEN
0 OPEN
0
OPEN
1k
OPEN
220
6.8k
220
6.8k
220
OPEN
OPEN
OPEN
OPEN
OPEN
OPEN
47
OPEN
OPEN
OPEN
6.8k
220
OPEN
OPEN
OPEN
1k
S2_4
CPR1/RE1
L4
Y1
R1
C1_RE1
S21/SLW1
R4
V2
V1
L1
GND
S1DC
CPY1/GR1
L2
CPB1/BU1
BS_ABT30
BS_A5V
S1
Y4
RE2
C4
S4
L_SWMAIN
MON_R
GND
MON_L
MON_V
Y2
R2
R_SWMAIN
GND
STB_5V
GND
SDA3B5
BS_A9V
GND
MON_Y
MON_C
SCL3B5
MAIN_VY0
BS_A9V
MAIN_C
C2_RE2
S22/SLW2
S2
C2_RE2
L3
V3
V4
GND
GND
BS_A9V
BS_A9V
GND
BS_A9V
EUROR4
EUROL4
TVLINK
BS_A5V
SCL3B5
GND
R3
GND
GND
GND
GND
V2
SDA3B5
SCL3B5
BS_A9V
L2
GND
GND
SDA3B5
GND
GND
9V
D13_YS1
CENTIN
CPY3
CPB3
CPR3
A_MUTE
5V
GND
EU_SDA0
Y2
R2
TV_LOUT
TV_ROUT
CPY1/GR1
S2
L3
S22/SLW2
V3
R3
M_MUTE
GND
CPB1/BU1
S1
C1_RE1
Y1
S21/SLW1
R1
V1
L1
CPR1/RE1
BU2
GR2
YS2
BS_A9V
GND
GND
BS_A9V
TV_ROUT
TV_LOUT
STB3.3V
9V ILA5V
SCL3B5
L_DIG
Y_DIG
R_DIG
C_DIG
V4
S4
L4
SDA3B5
MAIN_C
Y4
R4
EUROR4
MON_L
R_SWMAIN
MON_Y
MON_R
L_SWMAIN
C4
S2_4
MAIN_VY0
GR2
MON_V
BU2
M_MUTE
YS2
A_MUTE
MON_C
TVLINK
D13_YS1
CENTIN
CPY3
CPB3
CPR3
EUROL4
S1DC
EU_SDA0
RE2
SHEET4
AV JACK PWB
CN0J01
(SHEET7)
AV JACK PWB
CN0J02
(SHEET7)
RECEIVER PWB
CNF00A
(SHEET1)
SHEET2
OPEN
SHEET4
OPEN
SHEET3
SHEET3
SHEET2
SHEET3
SHEET3
SHEET4
SHEET4
SHEET3
SHEET5
SHEET3
SHEET3
SHEET5
SHEET4
OPEN
OPEN
OPEN
22k
0.001
47k
27k
15k
47k 82k
NPN
NPN
220
33k
10k
VIDEO/AUDIO
SELECT
47k
82k
33k
NPN
NPN
220
10k
15k
22k
0.001
47k
27k
220
33k
NPN
NPN
82k
10k
47k
22k
15k
47k
27k
0.001
0
UN2213-X
10k
10k
10k
NPN
NPN
SHEET2
SHEET3
SHEET3,4
SHEET4
SHEET3
SHEET2,4
SHEET4
PNP
OPEN
OPEN
OPEN
OPEN
OPEN
OPEN
OPEN
OPEN
OPEN
OPEN
10/16
10/16
100/10
MM1510XN-X
1/16
5.6k
PNP
2.2k
2.2k
2.2k
2.2k
10/16
5.6k
PNP
1/16
MM1510XN-X
100/10
OPEN
10/50
0
0
OPEN
OPEN
OPEN
OPEN
OPEN
OPEN
OPEN
RECEIVER PWB
CNF00T (SHEET1)
FRONT CONTROL PWB
CN800F
(SHEET22)
SHEET4
SHEET3
SHEET4
SHEET4
SHEET3
SHEET3
SHEET3
SHEET4
ANALOG SIGNAL PWB ASS'Y (1/5)
SFP0A201A-U2
ANALOG SIGNAL PWB CIRCUIT DIAGRAM (1/5) SHEET2

Table of Contents

Related product manuals