EasyManua.ls Logo

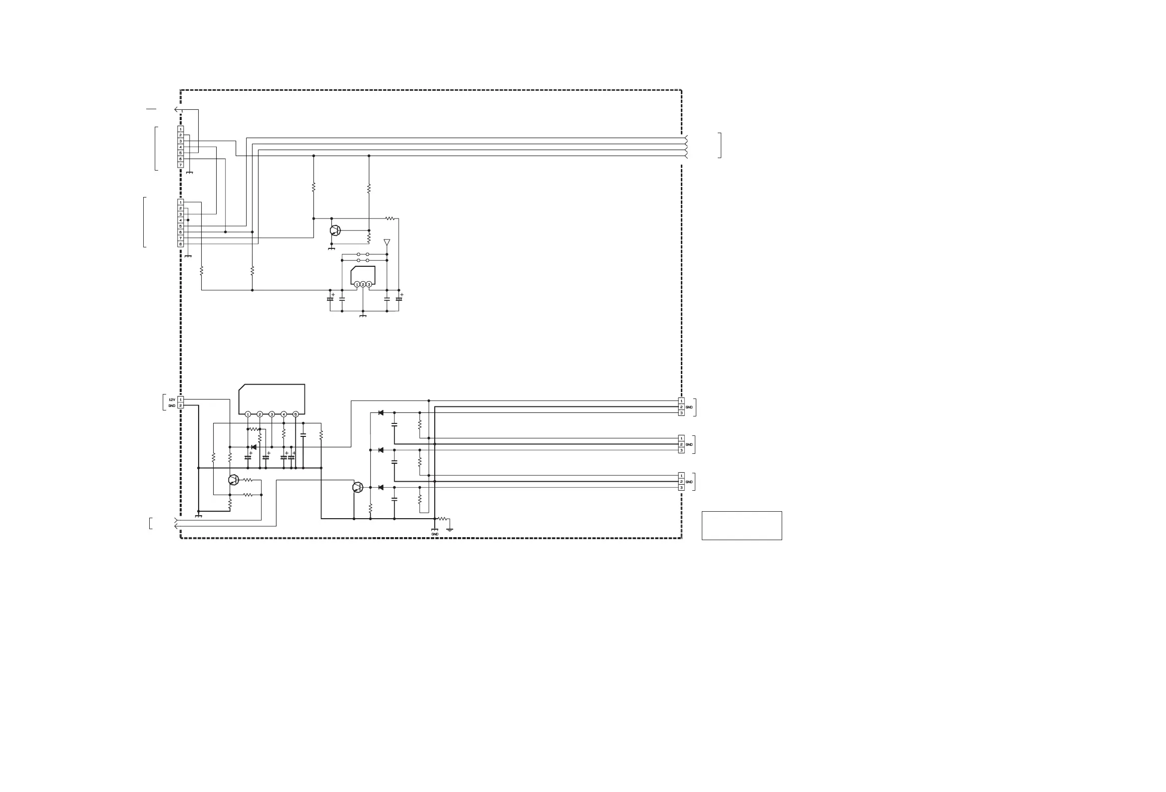
JVC PD-35B50BJ - Interface Pwb Circuit Diagram

JVC PD-35B50BJ
211 pages
Print Icon
To Next Page IconTo Next Page
To Next Page IconTo Next Page
To Previous Page IconTo Previous Page
To Previous Page IconTo Previous Page
Loading...
No. YA098
No. YA098 2-45 2-46
: NRSA63J-0R0X
: MA111-X
: 2SC3928A/QR/-X
3
1
0
NOTE
R111
C117C114 C116C115
R104
Q101
IC103
Y104
Y103
CN00Q
CN00G
POWER_ON
PANEL_POWER
AC_DET
THEM.DET
R106 R108
CN0FN
IC401
R408
R409
C404
OPEN
R415
C405
CN0FL
CN0FD
CN0FR
D401
R402 R403
R401R407
R406
R404
R405
Q401
C401
C402
R410
R411
R412
C410
C411
C412
D410
D411
D412
Q410
R413
C403
LED_ON
R107
R105
/6.3/10
BA05FP-X
PANELPOWER
POWERON
THEM.DET
ACDET
GND
GND
STB6V
QGA2001C2-08V
NC
GND
NC
LED_ON
QGA1501C2-07V
QGA2001C2-02V
QGA2001C2-03V
CB
CB
CB
OPEN
100100 OPENOPEN
3.3k
1
OPEN
OPEN
OPEN
10k
0 OPEN
OPEN
OPEN
OPEN
OPEN
OPEN
OPEN
OPEN
OPEN
OPEN
OPEN
OPEN
OPEN
OPEN
OPEN
OPEN
OPEN
OPEN
OPEN
OPEN
OPEN
OPEN
OPEN
OPEN
OPEN
OPEN
OPEN
OPEN
OPEN
OPEN
OPEN
DGND
DGND
DGND
DGND
VCC5STB
GND
DGND
DAC
FAN_LOCK
INTERFACE PWB ASS'Y (2/2)
SFP-7201A-U2 [PD-42B50BJ/PD-42B50BU]
SFP-7202A-U2 [PD-35B50BJ/PD-35B50BU]
SHEET19
ANALOG SIGNAL PWB (5/5)
CN00G (SHEET6)
MAIN POWER PWB (3/3)
CN9001 (SHEET29)
[PD-42B50BJ/PD-42B50BU]
MAIN POWER UNIT
CN9001
[PD-35B50BJ/PD-35B50BU]
OPEN
SHEET19
SHEET19
OPEN
OPEN
OPEN
NOTES) Please refer to page 2-87 for voltages of this circuit diagram.
INTERFACE PWB CIRCUIT DIAGRAM (2/2) SHEET20

Table of Contents

Related product manuals