EasyManua.ls Logo

KBS mini-Compacta - Page 78

KBS mini-Compacta
86 pages
Print Icon
To Next Page IconTo Next Page
To Next Page IconTo Next Page
To Previous Page IconTo Previous Page
To Previous Page IconTo Previous Page
Loading...
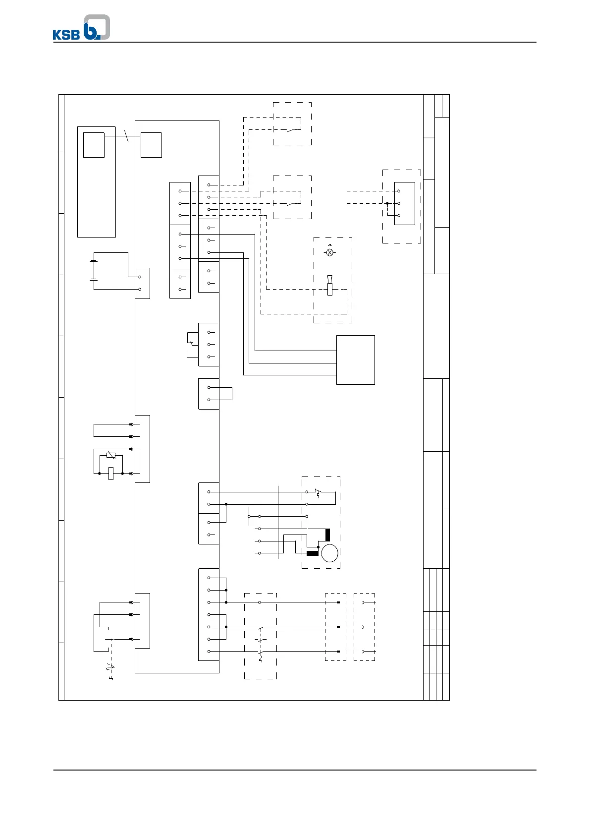
10.6.4 LevelControl Basic 2 Type BC - single-pump unit with cutter - up to 1.5 kW,
1~
Name Standard
Created
Prep. by
Reviewed
Date
Supersedes
Page
PageAmended
Superseded byOrig.
03
02
01
0
1
24.01.11
Nuss
LevelControl Basic 2 Type BC
2 3 4
Ansicht Platine
View of printed circuit board
Projection platine
Overzicht platine
5 6
Lifting unit
DOL - 0.75 / 1.5 kW
7
B D706066
8
= + S
9
1
1
=P1
- S1S1
Option
H
0
A
=E1-K1
Level
Control
Level Control 2
- X02
- X01
1a
L1
- Q1
1
2
3
4
5
6
L1
L1
L1
- X12
1
2
2
L2
1b
L3
N
N
N
3
3
N
1
1
P E
+S- X1 PE
P E
P E
P E
PE P E
=P1
- M1
=P1-X1 1
M
1~
1
2
109
2
U2
U1
Z1
Z2
3
122
3
PE
PE
P E
PE
121
21
4
120
20
5
- X11
A2
A1
1
1
- R1
2
2
3
3
4
4
001 002
-B1
Level sensor
V = 6-30 V DC
Signal = 0.3 - 4.7 V
BK
24 V
(+)
1
BN
Signal
2
024
BU
0
3
021 022
Option
- X03
1
B+
011
-P1
-G1
6V
+ -
010
2
B-
013
012
-G2
6V
+ -
015
014
-P2
017
016
Option
=E1-P1
019
018
Display
031
Option
1
030
041
3
040
051
2
050
R J45
Socket
R J45
Socket
Option
RJ45 cable
Remote
acknowledgement
External alarm input
Alarm combination or
alarm strobe light
BK=black
Moisture sensorMotor sensors Standard motor 1
Power supply
Max. back-up fuse 16 A
Max. connection cross-section 2.5 mm
2
General fault message
=P1-Q1
10 Related Documents
78 of 86
mini-Compacta

Table of Contents