EasyManua.ls Logo

Kodak 2200 - Equipped X-ray Generator

Kodak 2200
42 pages
Print Icon
To Next Page IconTo Next Page
To Next Page IconTo Next Page
To Previous Page IconTo Previous Page
To Previous Page IconTo Previous Page
Loading...
06/2009 SM731_K2200_01_en
6-5
Equipped X-ray Generator
Parameters Features
IEC standard 60601-2-28 (1993) Conform
Type of protection against electric shocks Class 1
Degree of protection against electric shocks Type B
Rated value of inherent filtration 1.5 mm (0.059 in.) eq. Al
Rated value of additional filtration 1.0 mm (0.039 in.) eq. Al
Rated value of total filtration 2.5 mm (0.098 in.) eq. Al
Beam-limiting cone, focal spot/skin distance 20 cm (7 7/8 in.)
Maximum accumulated heat. 32,500 J
Maximum continuous thermal dissipation 7 W
Amount of leaking radiation at maximum rate
during one hour of use
< 0.25 mGy
Maximum field of symmetrical radiation 6 cm (2 3/8 in.) diameter
Position and tolerance of the focal point on
the reference axis
0 mm +/- 0.5 mm (0.020 in.)
Table 6: Equipped x-ray generator
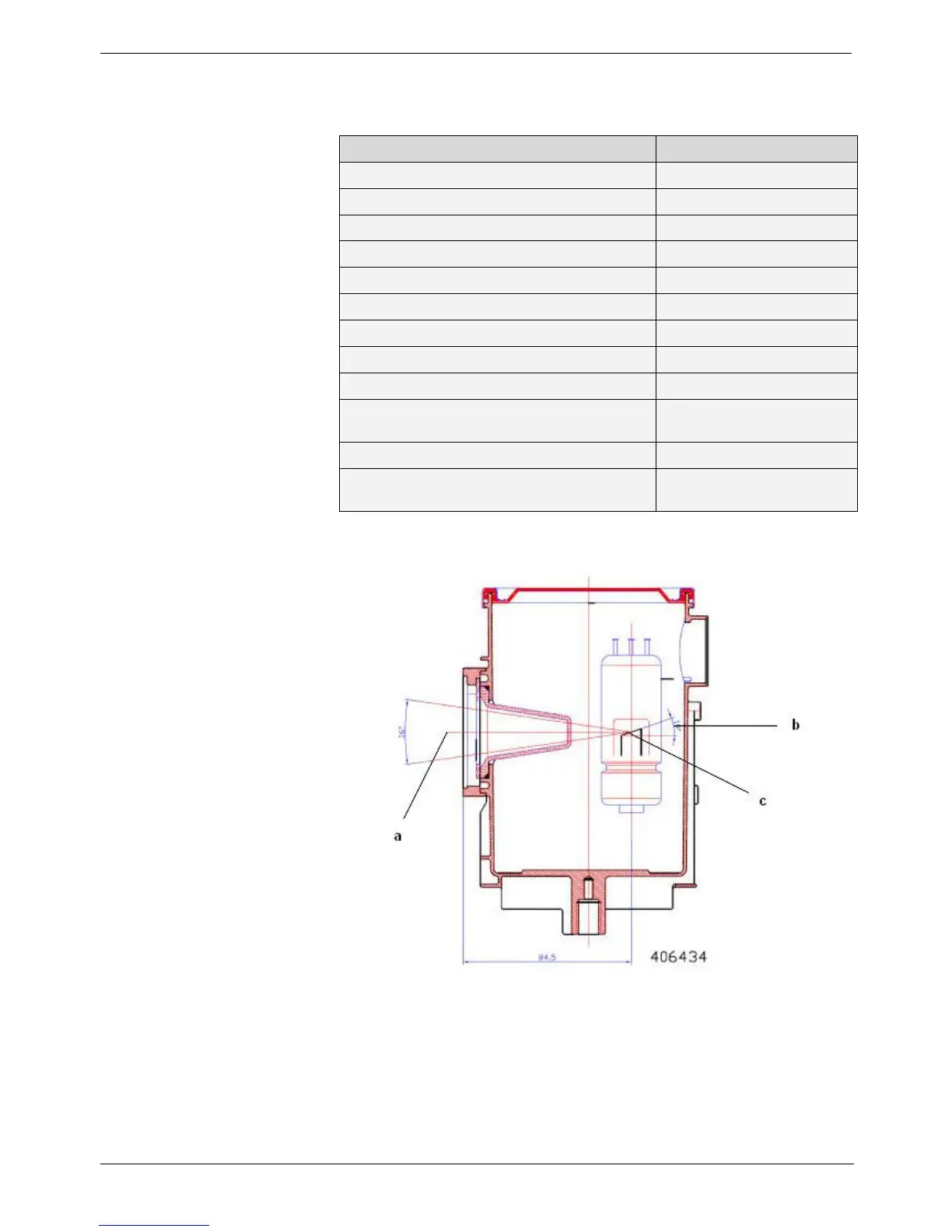
Figure 14: X-ray generator
a) Reference axis
b) Target angle
c) Focal point

Table of Contents

Related product manuals