EasyManua.ls Logo

KRACK KR Series - ELECTRIC DEFROST MODELS WIRING DIAGRAMS

Default Icon
39 pages
Print Icon
To Next Page IconTo Next Page
To Next Page IconTo Next Page
To Previous Page IconTo Previous Page
To Previous Page IconTo Previous Page
Loading...
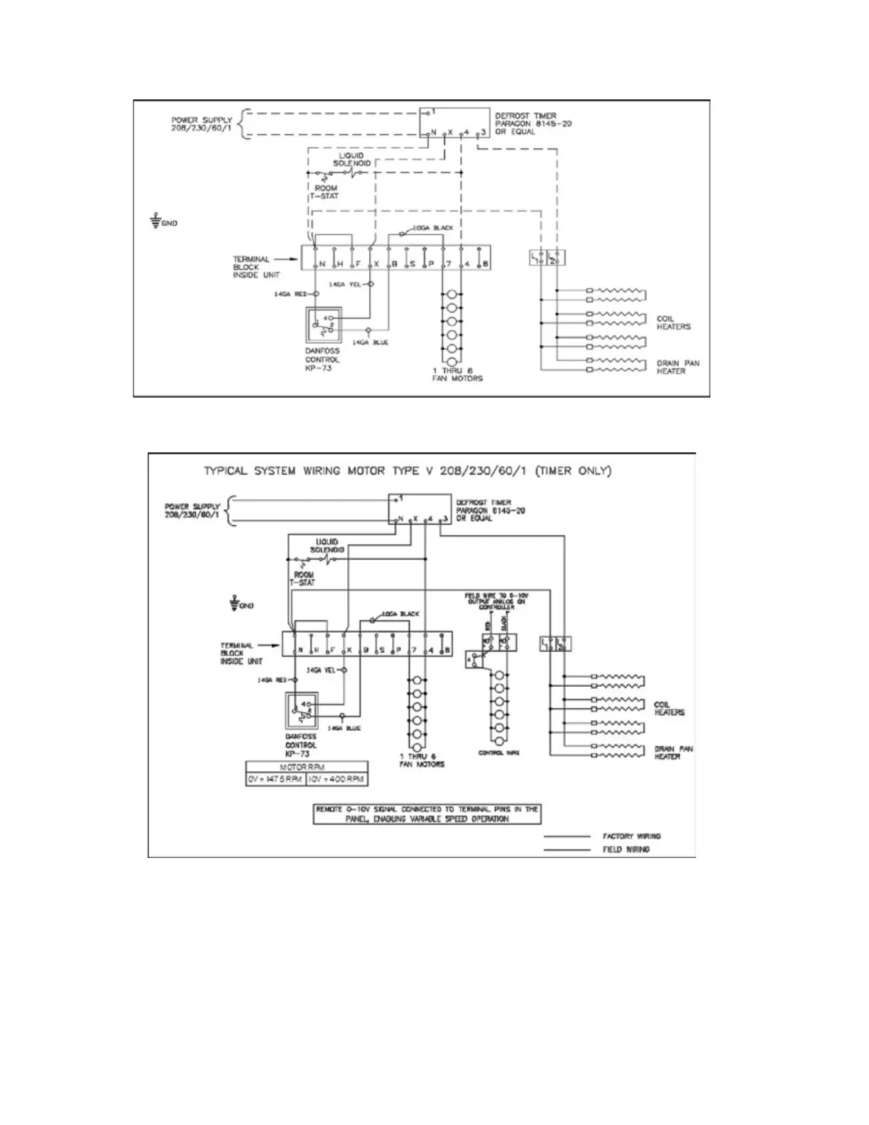
KR Electrical Defrost Unit Coolers (PN E108318_S) 18
8.2
ELECTRIC DEFROST MODELS WIRING DIAGRAMS
FIGURE 5A: ELECTRIC DEFROST SYSTEM WITH TIMER WIRING - MOTOR TYPE B
FIGURE 5B: ELECTRIC DEFROST SYSTEM WITH TIMER WIRING - MOTOR TYPE V

Table of Contents