EasyManua.ls Logo

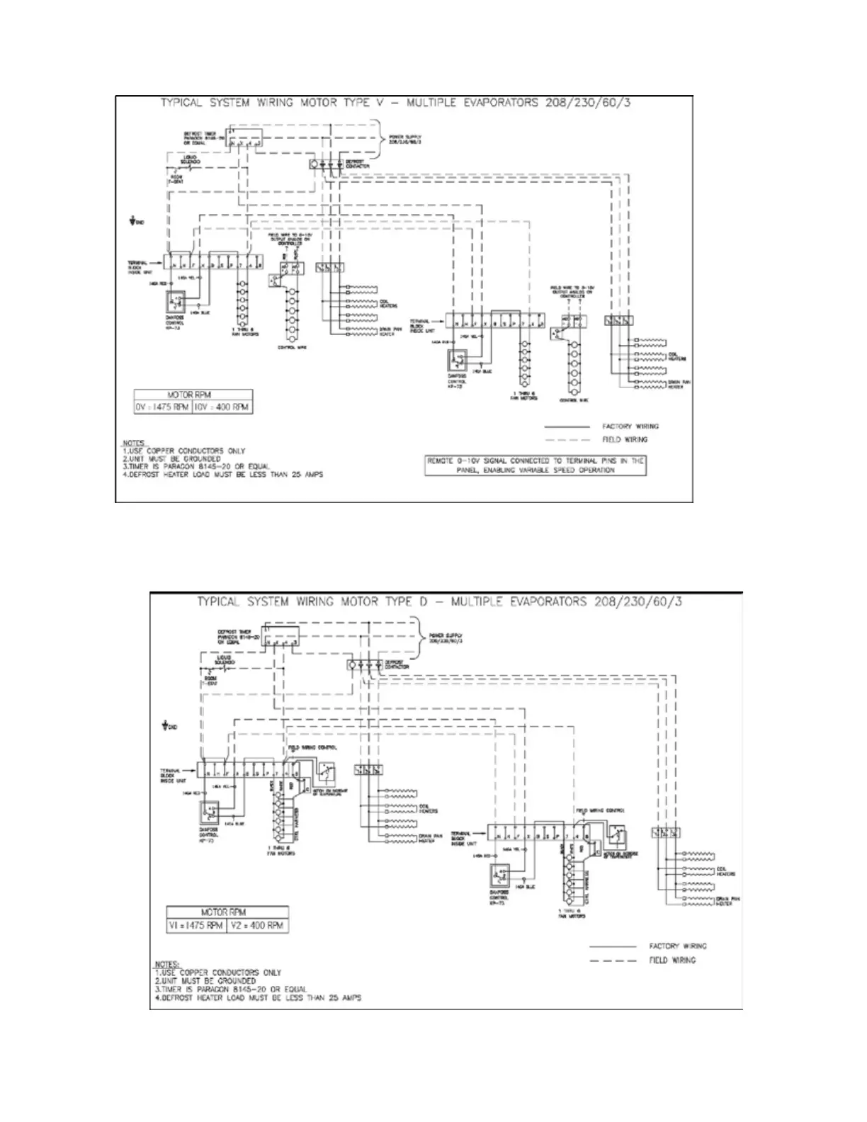
KRACK KR Series - FIGURE 8 B Electric Defrost System Wiring Motor Type V - Multiple Evaporators; FIGURE 8 C Electric Defrost System Wiring Motor Type D - Multiple Evaporators

Default Icon
39 pages
Print Icon
To Next Page IconTo Next Page
To Next Page IconTo Next Page
To Previous Page IconTo Previous Page
To Previous Page IconTo Previous Page
Loading...
23KR Electrical Defrost Unit Coolers (PN E108318_S)
FIGURE 8B: ELECTRIC DEFROST SYSTEM WIRING MOTOR TYPE V – MULTIPLE
EVAPORATORS
FIGURE 8C: ELECTRIC DEFROST SYSTEM WIRING MOTOR TYPE D – MULTIPLE
EVAPORATORS

Table of Contents