EasyManua.ls Logo

KRACK KR Series - GAS DEFROST MODELS WIRING DIAGRAMS

Default Icon
39 pages
Print Icon
To Next Page IconTo Next Page
To Next Page IconTo Next Page
To Previous Page IconTo Previous Page
To Previous Page IconTo Previous Page
Loading...
KR Electrical Defrost Unit Coolers (PN E108318_S) 24
8.3
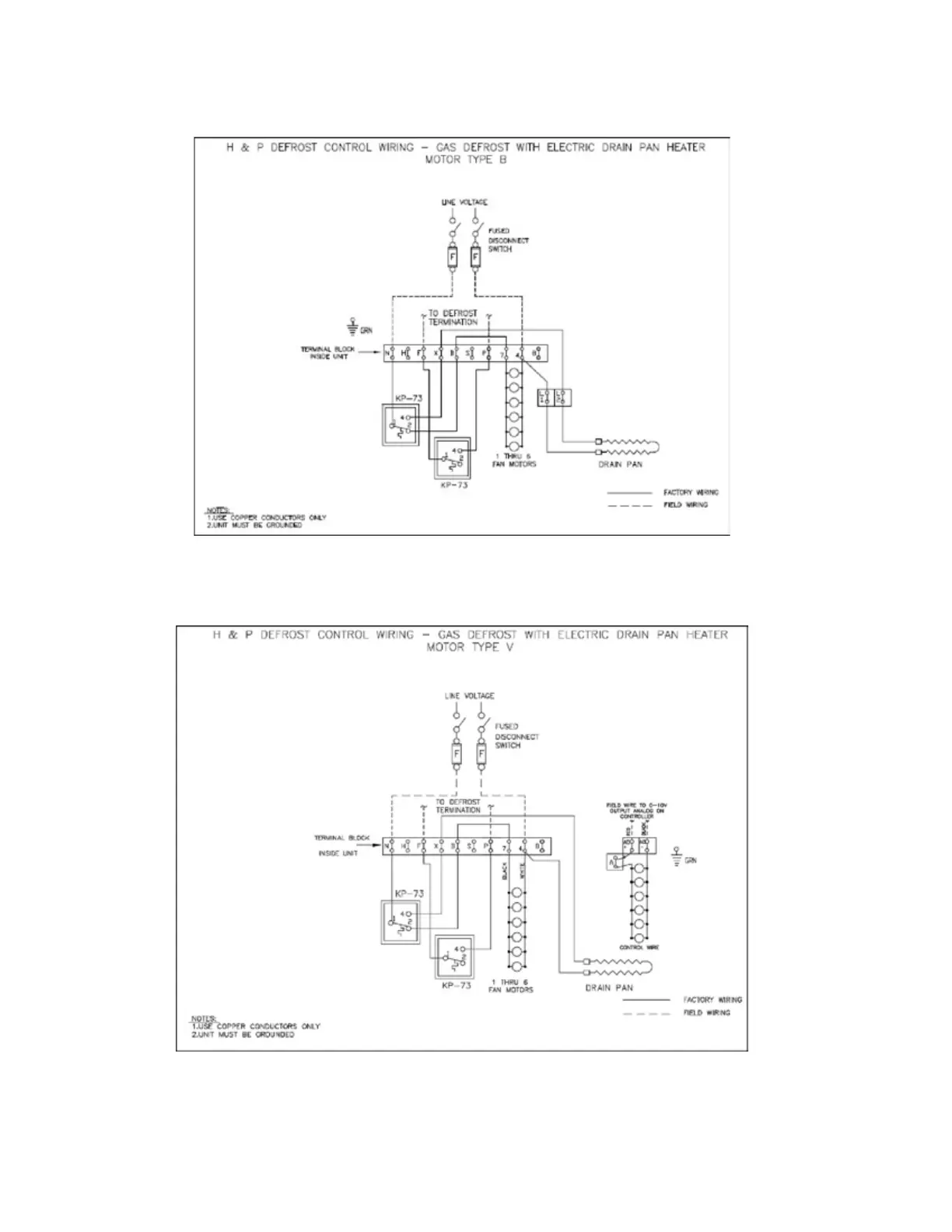
GAS DEFROST MODELS WIRING DIAGRAMS
FIGURE 9A: H - 3 PIPE HOT GAS WITH ELECTRIC PAN HEAT AND P - 2 PIPE KOOL
GAS WITH ELECTRIC PAN HEAT – MOTOR TYPE B
FIGURE 9B: H - 3 PIPE HOT GAS WITH ELECTRIC PAN HEAT AND P - 2 PIPE KOOL
GAS WITH ELECTRIC PAN HEAT – MOTOR TYPE V

Table of Contents