EasyManua.ls Logo

KRACK KR Series - FIGURE 7 C Electric Defrost System Wiring Motor Type D Motor - 3 Phase Heaters; FIGURE 8 A Electric Defrost System Wiring Motor Type B - Multiple Evaporator

Default Icon
39 pages
Print Icon
To Next Page IconTo Next Page
To Next Page IconTo Next Page
To Previous Page IconTo Previous Page
To Previous Page IconTo Previous Page
Loading...
KR Electrical Defrost Unit Coolers (PN E108318_S) 22
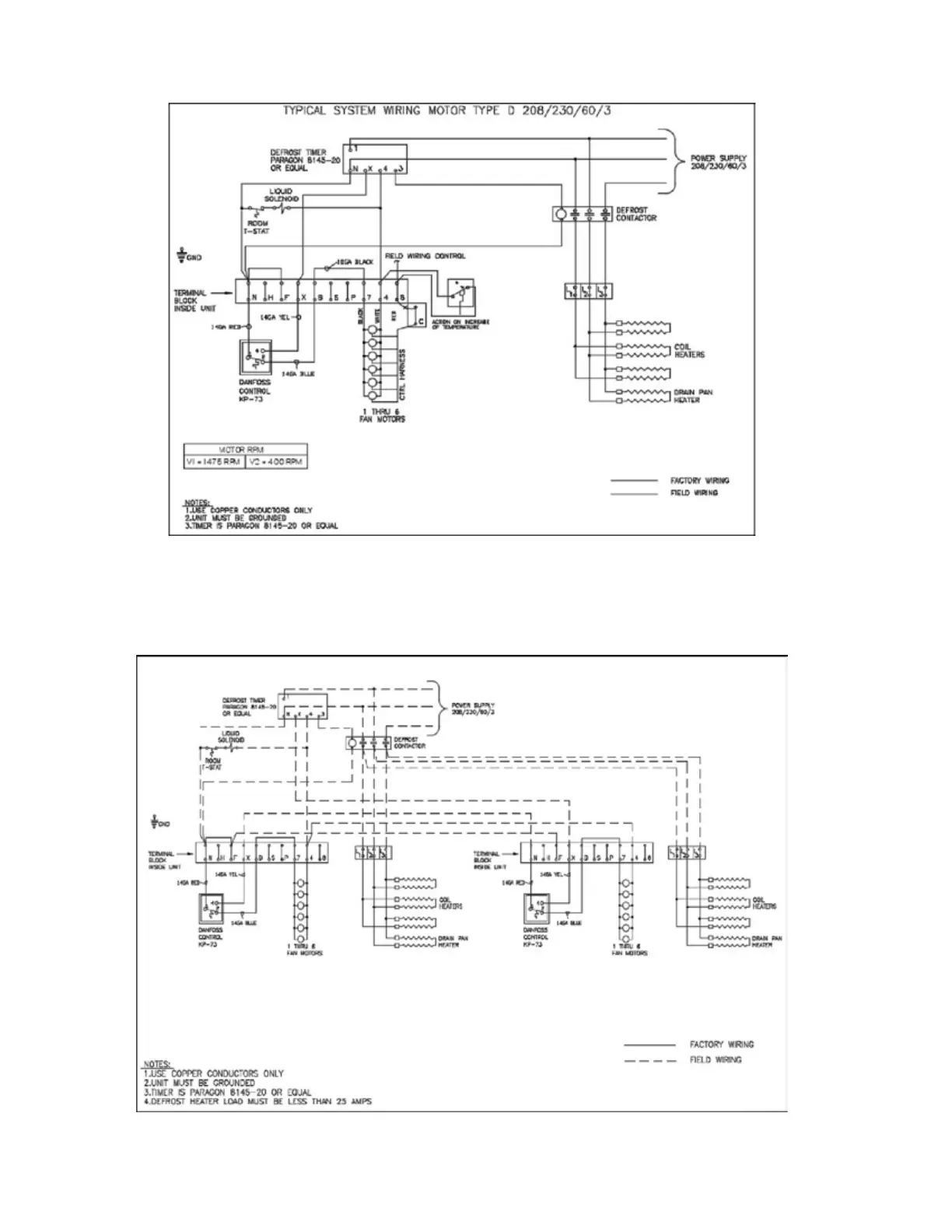
FIGURE 7C: ELECTRIC DEFROST SYSTEM WIRING MOTOR TYPE D MOTOR -
3 PHASE HEATERS
FIGURE 8A: ELECTRIC DEFROST SYSTEM WIRING MOTOR TYPE B – MULTIPLE
EVAPORATORS
When defrosting two or more units at one time with a single time clock, the defrost termination
thermostats must be wired in series as shown in FIGURE 8 below.

Table of Contents