EasyManua.ls Logo

KRACK KR Series - INTERLOCKING SINGLE COMPRESSOR UNIT WITH KRACK COIL

Default Icon
39 pages
Print Icon
To Next Page IconTo Next Page
To Next Page IconTo Next Page
To Previous Page IconTo Previous Page
To Previous Page IconTo Previous Page
Loading...
31KR Electrical Defrost Unit Coolers (PN E108318_S)
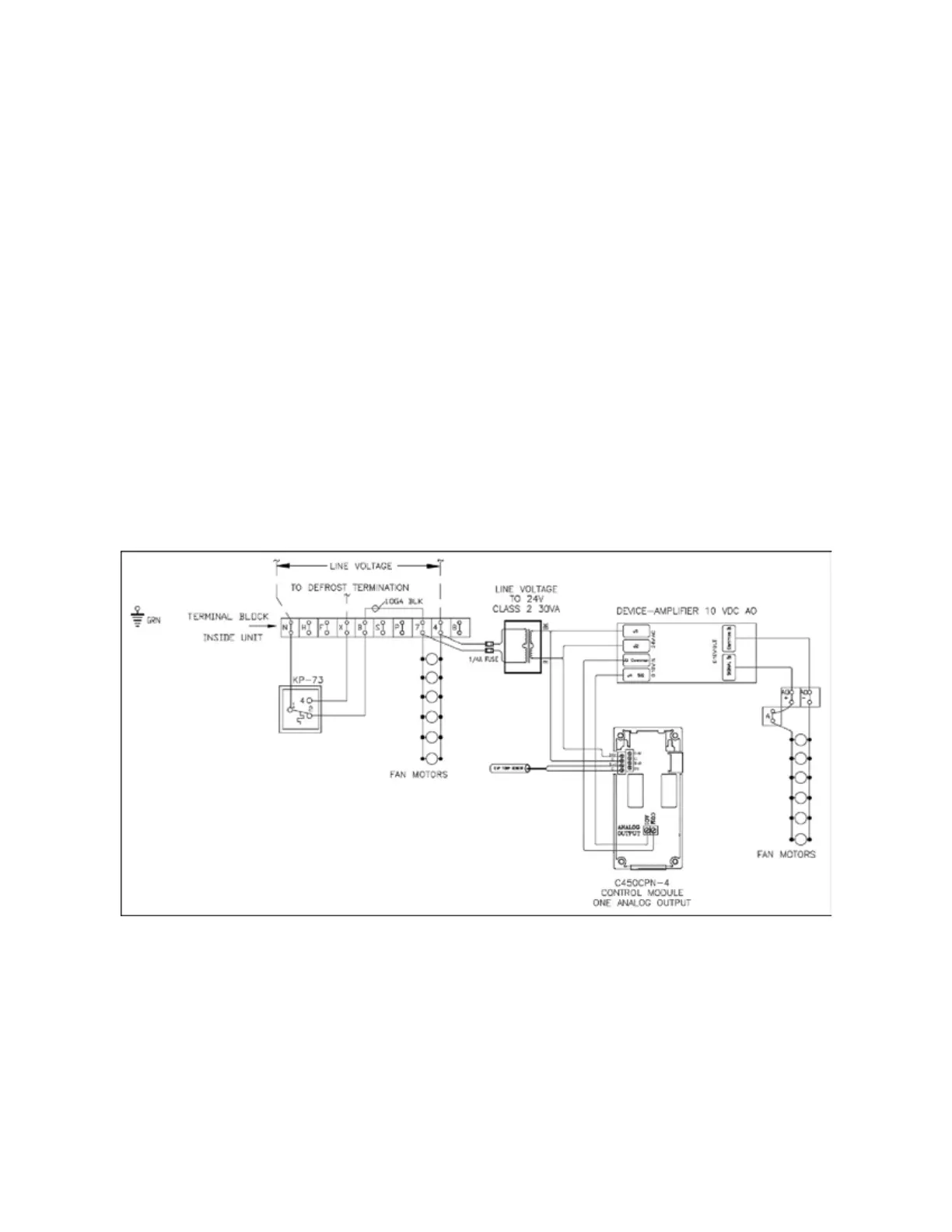
Output at Setpoint (OSP) – is the signal strength level of the analog output when the input sensor
is at Setpoint (SP). The OSP is expressed as a percentage (0 to 100%) of the full-scale output.
Output signal strength at setpoint, i.e., Analog signal at setpoint. 0% - 0V
Output at Endpoint (OEP) – value (OEP) is the signal strength level of the analog output when the
input sensor is at the End Point (EP). The OEP is expressed as a percentage (0 to 100%) of the
full-scale output. Output signal strength at endpoint, i.e., Analog signal at endpoint. 100% - 10V
Fan motor will receive 0V signal at Setpoint (SP) from System 450 controller, the fans will run
at full speed. At Endpoint (EP), fans will receive 10V signal, the fans will run at minimum speed.
The analog signal varies between setpoint to endpoint proportionally based on the box temperature
measured by installed temperature sensor thus varies the fan speed proportionally.
Signal Amplifier is used enhance the analog signal strength from System 450 and then feed the
signal to the motor to vary the fan speed. (Signal amplifier needed for KR, GH, GL, and LH evapo-
rator coils only).
Sensor Failure Mode –
System 450 allows the user to select the mode of operation for control system outputs in the event
of a sensor (or sensor wiring) failure of the sensor that the outputs reference. Set SNF as OFF.
Analog output SNF OFF = Output Signal Strength at Set point (OSP). i.e., Analog output will fail
at OSP setpoint. Sending 0V signal to motor.
FIGURE 13: WIRING DRAWING OF EVAPORATOR WITH SYSTEM 450 AND
SIGNAL AMPLIFIER.
9.6
INTERLOCKING SINGLE COMPRESSOR UNIT WITH KRACK COIL
When a single compressor unit is utilized with a Krack evaporator, the evaporator fan should run
at full speed whenever the compressor is running (i.e., when using evaporator with dual speed motor
fans), and variable speed motor fans the fan speed should not modulate when the compressor
is running. Fan speed can modulate only when compressor is turned off due to system operation.
When Krack evaporator coils are used with single compressor units from Hussmann (HE-Series,
H-Series, and C-Series), there is a provision given to interlock the compressor with evaporator fans.

Table of Contents