EasyManua.ls Logo

LEGRAND DMX3 1600 - Page 19

LEGRAND DMX3 1600
104 pages
Go to English
Print Icon
To Next Page IconTo Next Page
To Next Page IconTo Next Page
To Previous Page IconTo Previous Page
To Previous Page IconTo Previous Page
Loading...
19
DMX
3
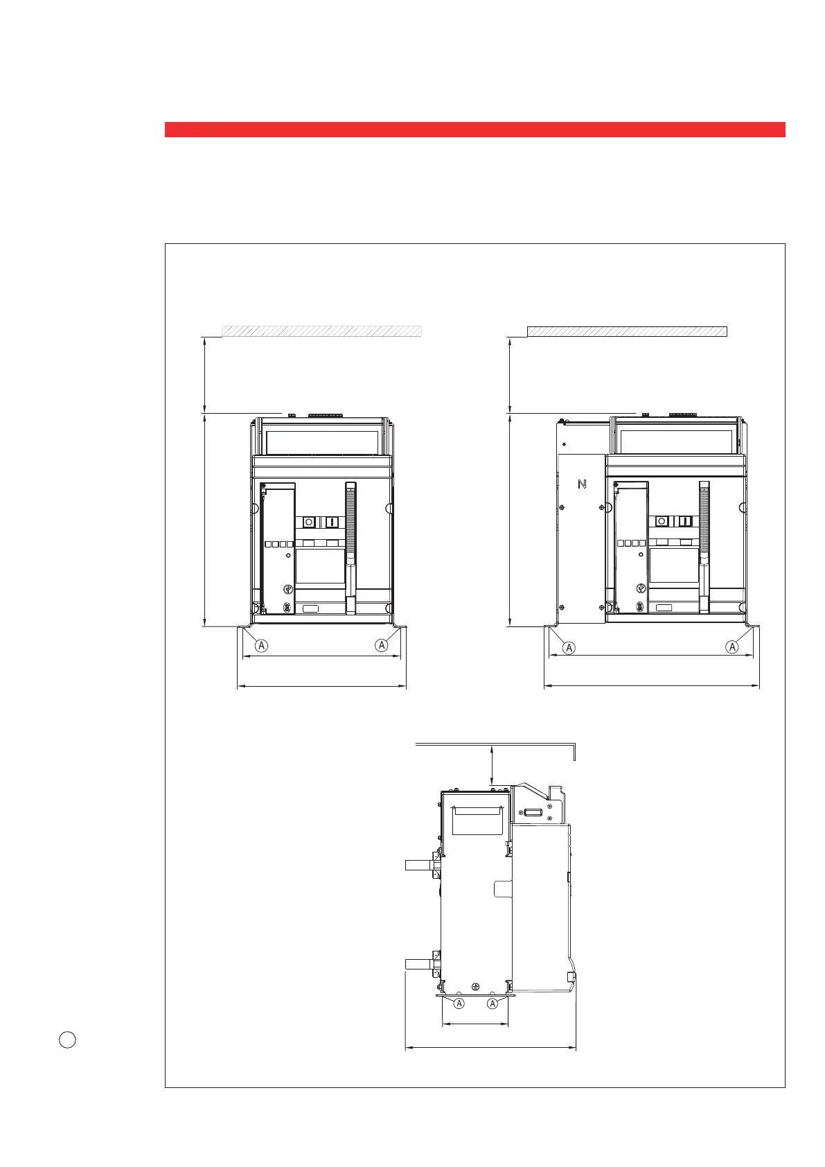
10.1 Installation d’un disjoncteur DMX
3
version fixe
Détails de montage.
115
115321
321
237
254
307
324
254
100
66
BARRE
Version 3P
Version fixe
BARRE
Version 4P
A = point de
fixation sur
la platine de
l'armoire

Related product manuals