EasyManua.ls Logo

LEGRAND DMX3 1600

LEGRAND DMX3 1600
104 pages
Go to English
To Next Page IconTo Next Page
To Next Page IconTo Next Page
To Previous Page IconTo Previous Page
To Previous Page IconTo Previous Page
Loading...
20
DMX
3
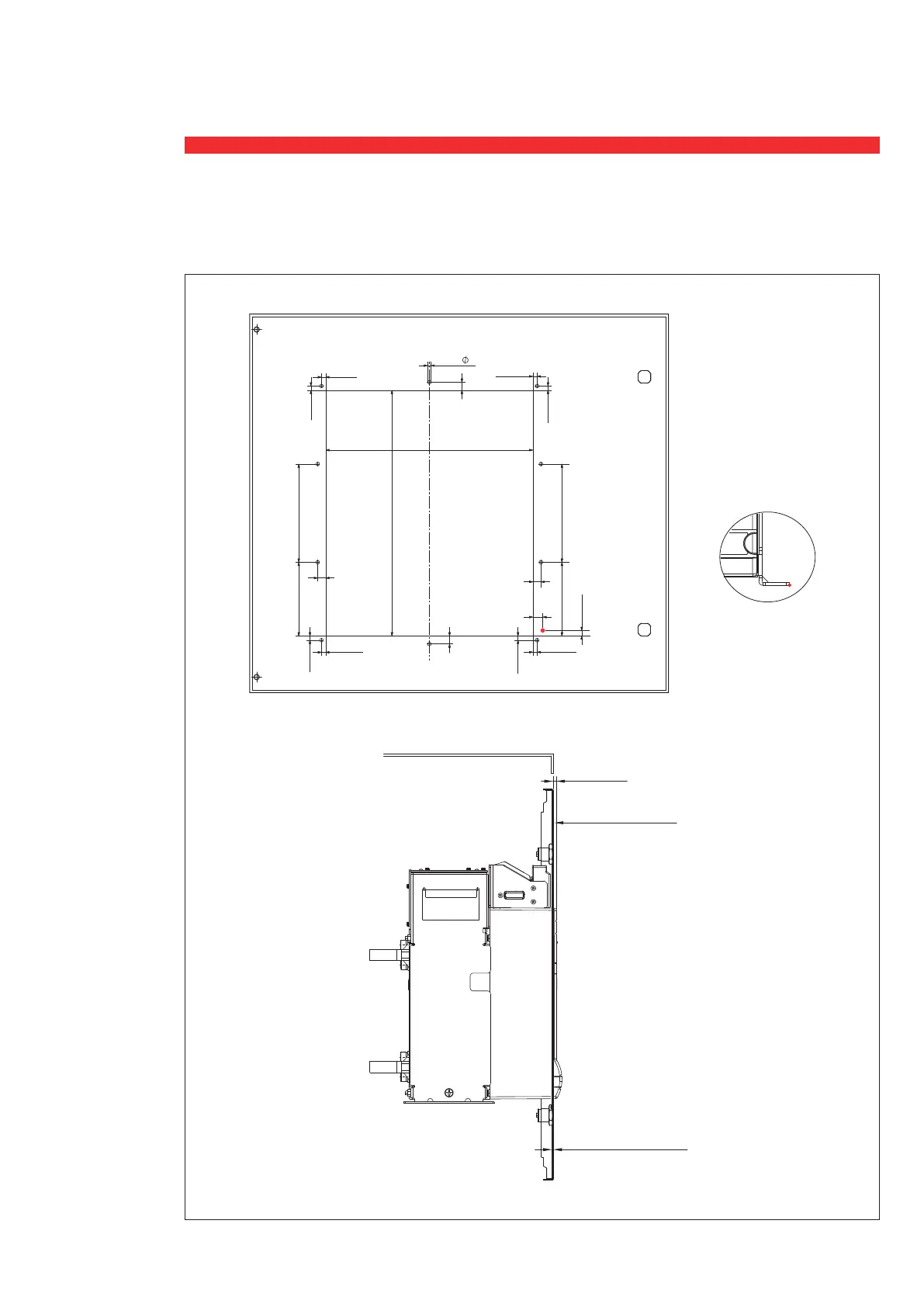
10.2 Découpe et perçage du plastron pour version fixe
Détails de montage.
0÷5mm
PLASTRON
MIN 1.2mm -
Épaisseur du plastron:
MAX 2.5mm
4.75
4.75
4.75
4.75
4.75
4.75
4.75
4.75
9
9
9
9
110
82.5
275
232
110
82.5
11
5.25
410
Coin du disjoncteur

Related product manuals