EasyManua.ls Logo

LEGRAND DMX3 1600 - Page 21

LEGRAND DMX3 1600
104 pages
Go to English
Print Icon
To Next Page IconTo Next Page
To Next Page IconTo Next Page
To Previous Page IconTo Previous Page
To Previous Page IconTo Previous Page
Loading...
21
DMX
3
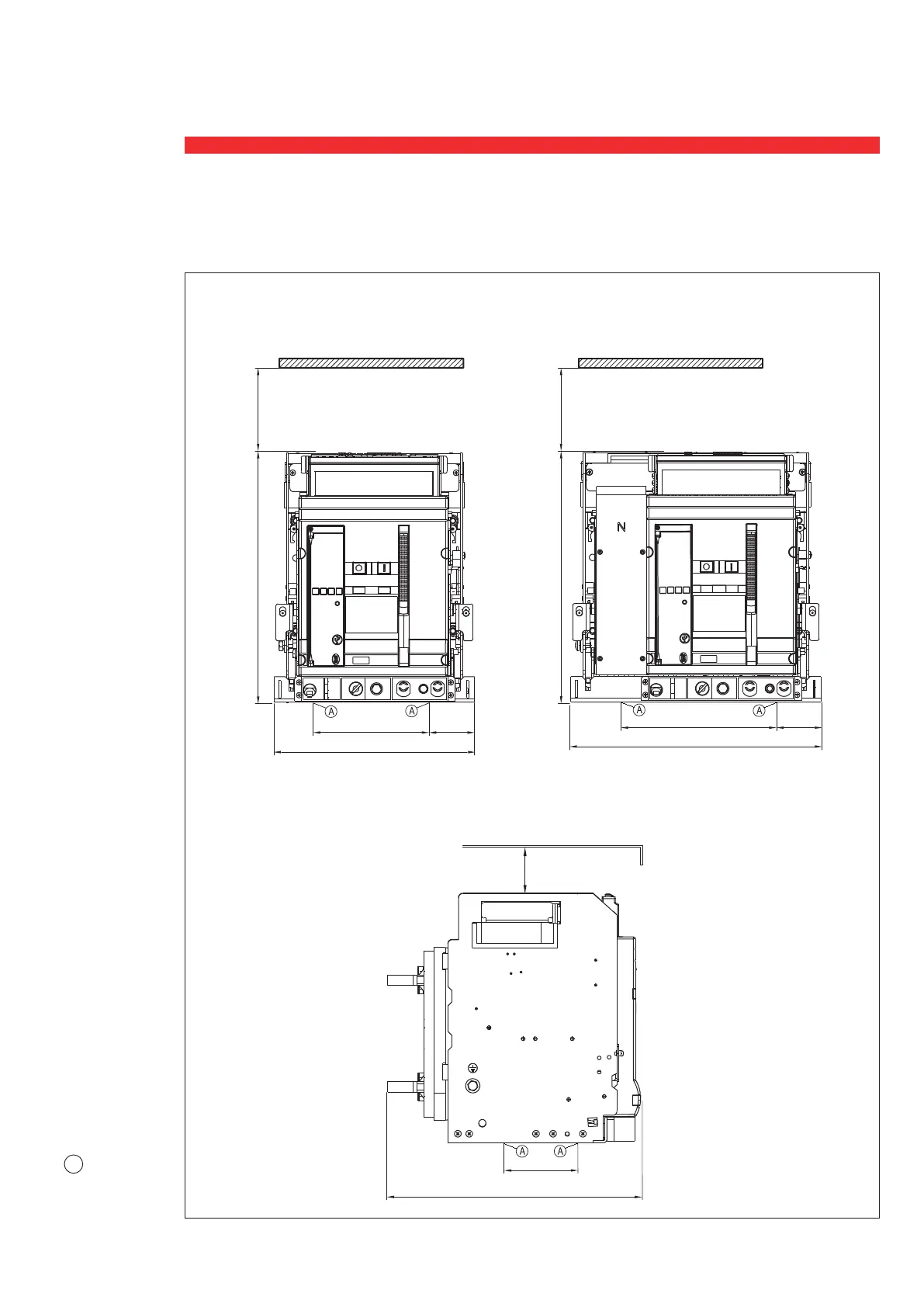
10.3 Installation d’un disjoncteur DMX
3
version débrochable
Détails de montage.
66
150
282
63
352
63
220
352
115
115
352
356
95
A = point de
fixation sur
la platine de
l'armoire
BARRE
Version 3P
BARRE
Version 4P

Related product manuals