EasyManua.ls Logo

LEGRAND DMX3 1600 - Page 22

LEGRAND DMX3 1600
104 pages
Go to English
Print Icon
To Next Page IconTo Next Page
To Next Page IconTo Next Page
To Previous Page IconTo Previous Page
To Previous Page IconTo Previous Page
Loading...
22
DMX
3
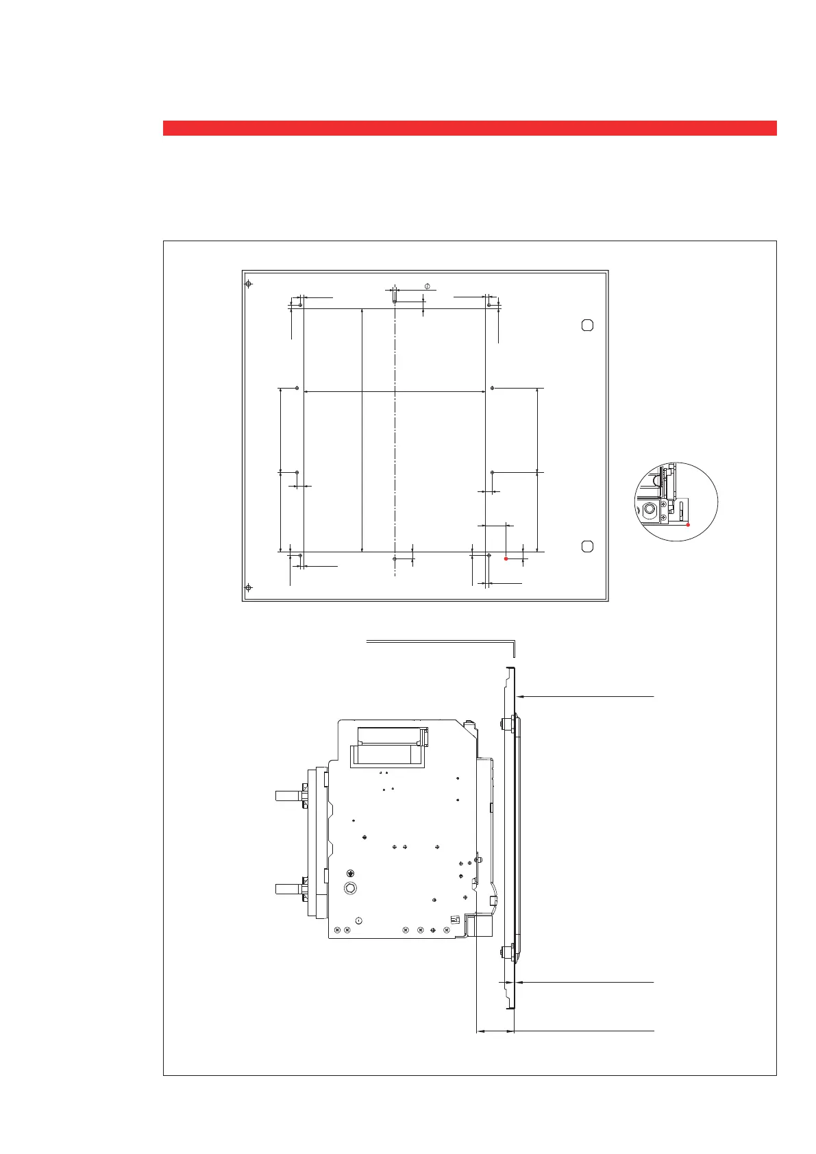
10.4 Découpe et perçage du plastron pour version débrochable
Détails de montage.
MIN 1.2mm -
Épaisseur du plastron:
PLASTRON
distance minimum
MAX 2.5mm
23
4.75
4.75
4.75
4.75
4.75
4.75
4.75
4.75
9
9
26.5
101.5
108
311
9
9
101.5
108
9
232
410
Coin du disjoncteur

Related product manuals