EasyManua.ls Logo

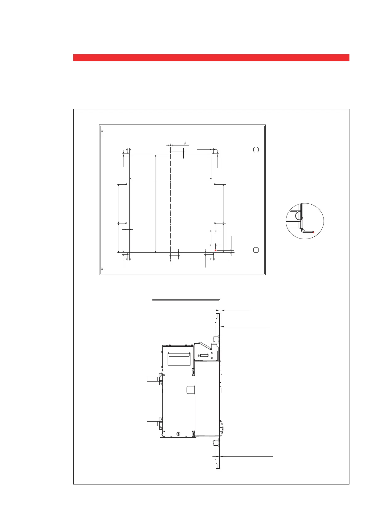
LEGRAND DMX3 1600 - 10.2 Fixed version door cut-out

LEGRAND DMX3 1600
104 pages
Go to English
Print Icon
To Next Page IconTo Next Page
To Next Page IconTo Next Page
To Previous Page IconTo Previous Page
To Previous Page IconTo Previous Page
Loading...
70
DMX
3
10.2 Door cut-out for fixed version
Mounting details.
0÷5mm
PANEL DOOR
MIN 1.2mm -
Thickness of the panel:
MAX 2.5mm
4.75
4.75
4.75
4.75
4.75
4.75
4.75
4.75
9
9
9
9
110
82.5
275
232
110
82.5
11
5.25
410
Corner of the breaker

Related product manuals