EasyManua.ls Logo

LEGRAND DMX3 1600 - 10.3 Draw-out version installation

LEGRAND DMX3 1600
104 pages
Go to English
Print Icon
To Next Page IconTo Next Page
To Next Page IconTo Next Page
To Previous Page IconTo Previous Page
To Previous Page IconTo Previous Page
Loading...
71
DMX
3
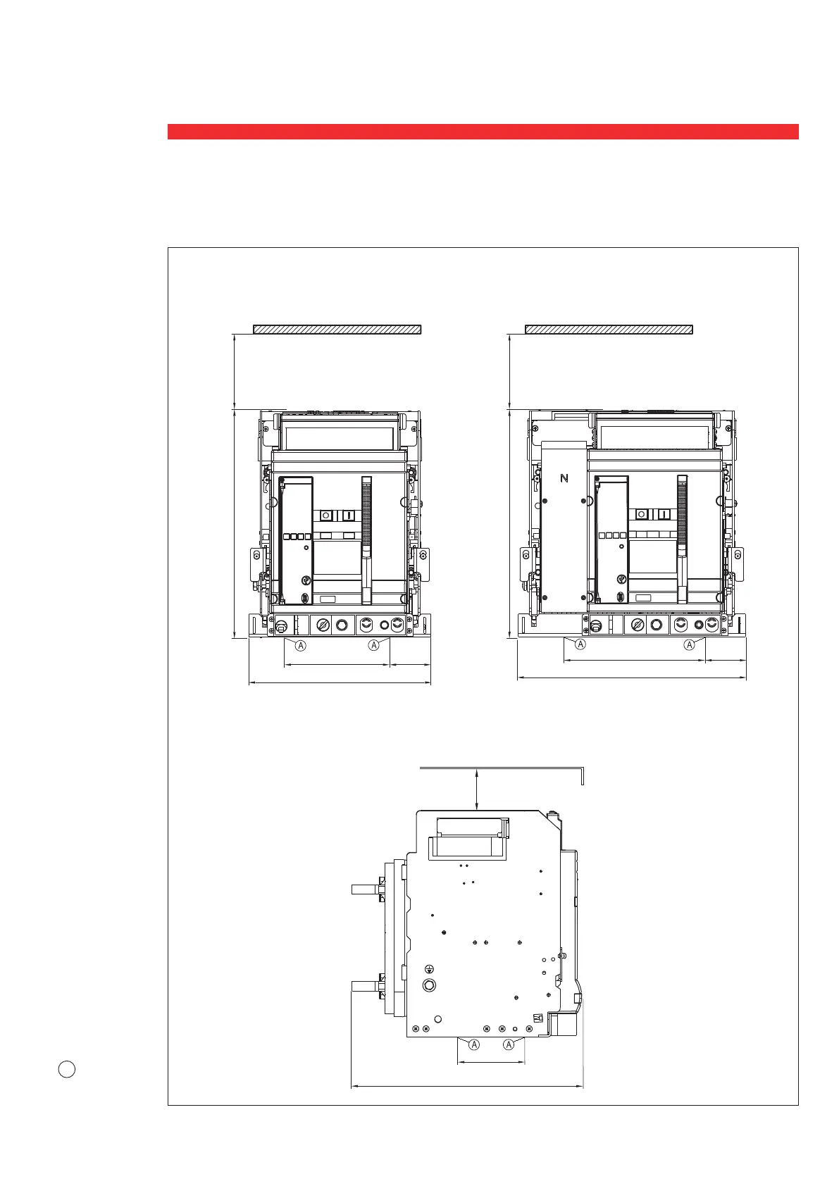
10.3 Installation of breaker DMX
3
draw-out version
Mounting details
66
150
282
63
352
63
220
352
115
115
352
356
95
A = Fixing
point on plate
of enclosure
BUSBAR
3P version
BUSBAR
4P version

Related product manuals