EasyManua.ls Logo

LEGRAND DMX3 1600 - 10.4 Draw-out version door cut-out

LEGRAND DMX3 1600
104 pages
Go to English
Print Icon
To Next Page IconTo Next Page
To Next Page IconTo Next Page
To Previous Page IconTo Previous Page
To Previous Page IconTo Previous Page
Loading...
72
DMX
3
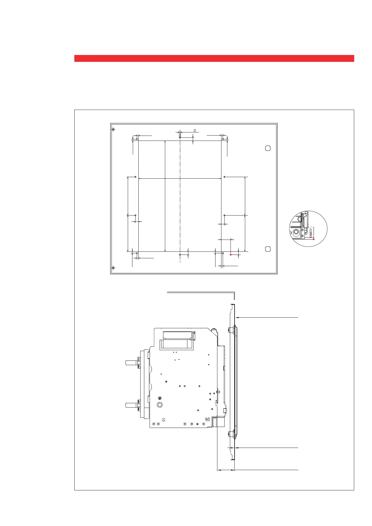
10.4 Door cut-out and door drilling for draw-out version
Mounting details.
MIN 1.2mm -
Thickness of the panel:
PANEL DOOR
minimum distance
MAX 2.5mm
23
4.75
4.75
4.75
4.75
4.75
4.75
4.75
4.75
9
9
26.5
101.5
108
311
9
9
101.5
108
9
232
410
Corner of the breaker

Related product manuals