EasyManua.ls Logo

Lenovo ThinkSystem SR645 - Super Capacitor Cable Routing

Lenovo ThinkSystem SR645
188 pages
To Next Page IconTo Next Page
To Next Page IconTo Next Page
To Previous Page IconTo Previous Page
To Previous Page IconTo Previous Page
Loading...
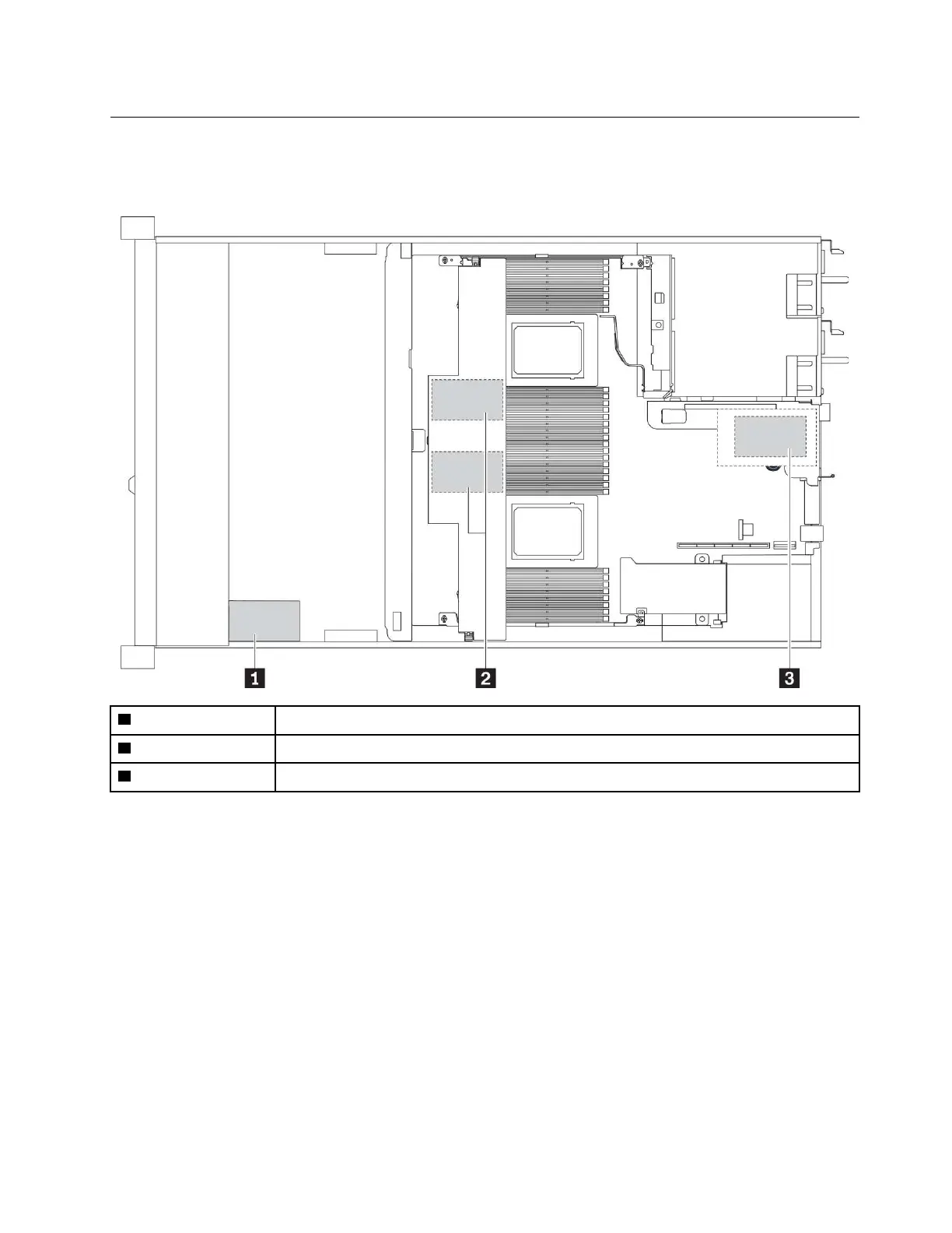
Super capacitor cable routing
Use the section to understand the cable routing for backplanes.
RAID super capacitor module location
1
Super capacitor on the chassis
2
Super capacitors in the air baffle
3
Super capacitors in riser 3 assembly
Chapter 3. Internal cable routing 57

Table of Contents

Other manuals for Lenovo ThinkSystem SR645

Related product manuals