EasyManua.ls Logo

Lenovo ThinkSystem SR645 - Drive Backplane Cable Routing; Signal); Drive Backplane Cable Routing (Power & Signal)

Lenovo ThinkSystem SR645
188 pages
To Next Page IconTo Next Page
To Next Page IconTo Next Page
To Previous Page IconTo Previous Page
To Previous Page IconTo Previous Page
Loading...
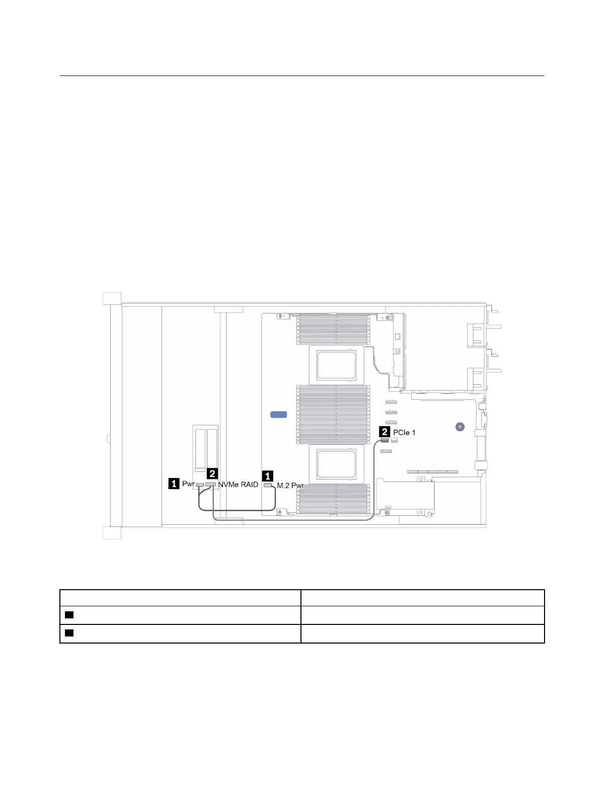
M.2 drive backplane cable routing (power & signal)
This section provides cable routing information for the M.2 drives.
Notes:
M.2 drives can be installed on the chassis (scenario 1) or 3.5-inch front drive cage (scenario 2). The
following illustration shows the cable connection for scenario 1. The cable connections for the other
scenario is the same.
M.2 signal cable can be connected to both PCIe connector 1 or PCIe connector 4 on the system board.
The illustration shows the general scenario, the signal cable needs to be connected to PCIe connector 4
only when the server model is one of the following:
Server models with 10 x 2.5-inch front drive bays (AnyBay)
Server models with 10 x 2.5-inch front drive bays (NVMe)
Server models with 10 x 2.5-inch front drive bays (8AnyBay+2NVMe)
Figure 14. Cable routing for M.2 drives
From To
1 Power cable M.2 power connector on the system board
2 M.2 signal cable
PCIe connector 1 on the system board
60 ThinkSystem SR645 Setup Guide

Table of Contents

Other manuals for Lenovo ThinkSystem SR645

Related product manuals