EasyManua.ls Logo

Lenovo ThinkSystem SR645 - X 2.5-Inch Front Drive Bays (SAS;SATA)

Lenovo ThinkSystem SR645
188 pages
To Next Page IconTo Next Page
To Next Page IconTo Next Page
To Previous Page IconTo Previous Page
To Previous Page IconTo Previous Page
Loading...
4 x 2.5-inch front drive bays (SAS/SATA)
The server model is configured with one 4 x 2.5-inch SAS/SATA front drive backplane. Below lists all
supported configurations with this front drive backplane.
Configuration option
Storage controller
Qty. Type
Config. 1
Config. 2
1 SFF 8i RAID/HBA
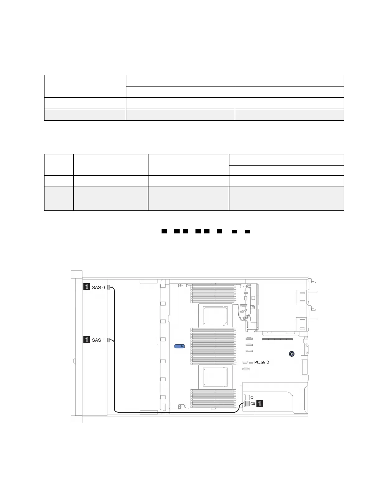
Depending on your server configurations, refer to one of the following sections for cable routing information.
Configuration 1 and 2: (front drive bays only)
Config.
Front BP
System board
Storage controller
SFF 8i RAID/HBA
1 SAS 0 PCIe 2
2
SAS 0, SAS 1
Gen 4: C 0
Gen 3: C 0, C 1
The following illustration shows the cable routing for the configuration 2, the routing for configuration 1 is
similar. Connections between connectors:
1 1 , 2 2 , 3 3 , ... n n
Note: For models that support Gen 3 and Gen4 adapters in the same slot, the illustration shows only the
cable routing information for Gen 4 adapters, the routing and connector information is similar for Gen 3
adapters.
Figure 15. Cable routing for configuration 2
Chapter 3. Internal cable routing 63

Table of Contents

Other manuals for Lenovo ThinkSystem SR645

Related product manuals