EasyManua.ls Logo

Lenovo ThinkSystem SR645 - 7 Mm Drive Backplane Cable Routing; Signal); 7 Mm Drive Backplane Cable Routing (Power & Signal)

Lenovo ThinkSystem SR645
188 pages
To Next Page IconTo Next Page
To Next Page IconTo Next Page
To Previous Page IconTo Previous Page
To Previous Page IconTo Previous Page
Loading...
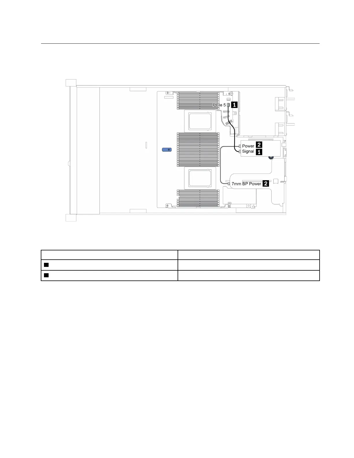
7mm drive backplane cable routing (power & signal)
This section provides cable routing information for the 7mm drives.
Figure 13. Cable routing for 7mm drives
From To
1 7mm signal cable PCIe connector 5 on the system board
2 Power cable 7mm power connector on riser 1 assembly
Chapter 3. Internal cable routing 59

Table of Contents

Other manuals for Lenovo ThinkSystem SR645

Related product manuals