EasyManua.ls Logo

Lenovo ThinkSystem SR645 - Page 78

Lenovo ThinkSystem SR645
188 pages
To Next Page IconTo Next Page
To Next Page IconTo Next Page
To Previous Page IconTo Previous Page
To Previous Page IconTo Previous Page
Loading...
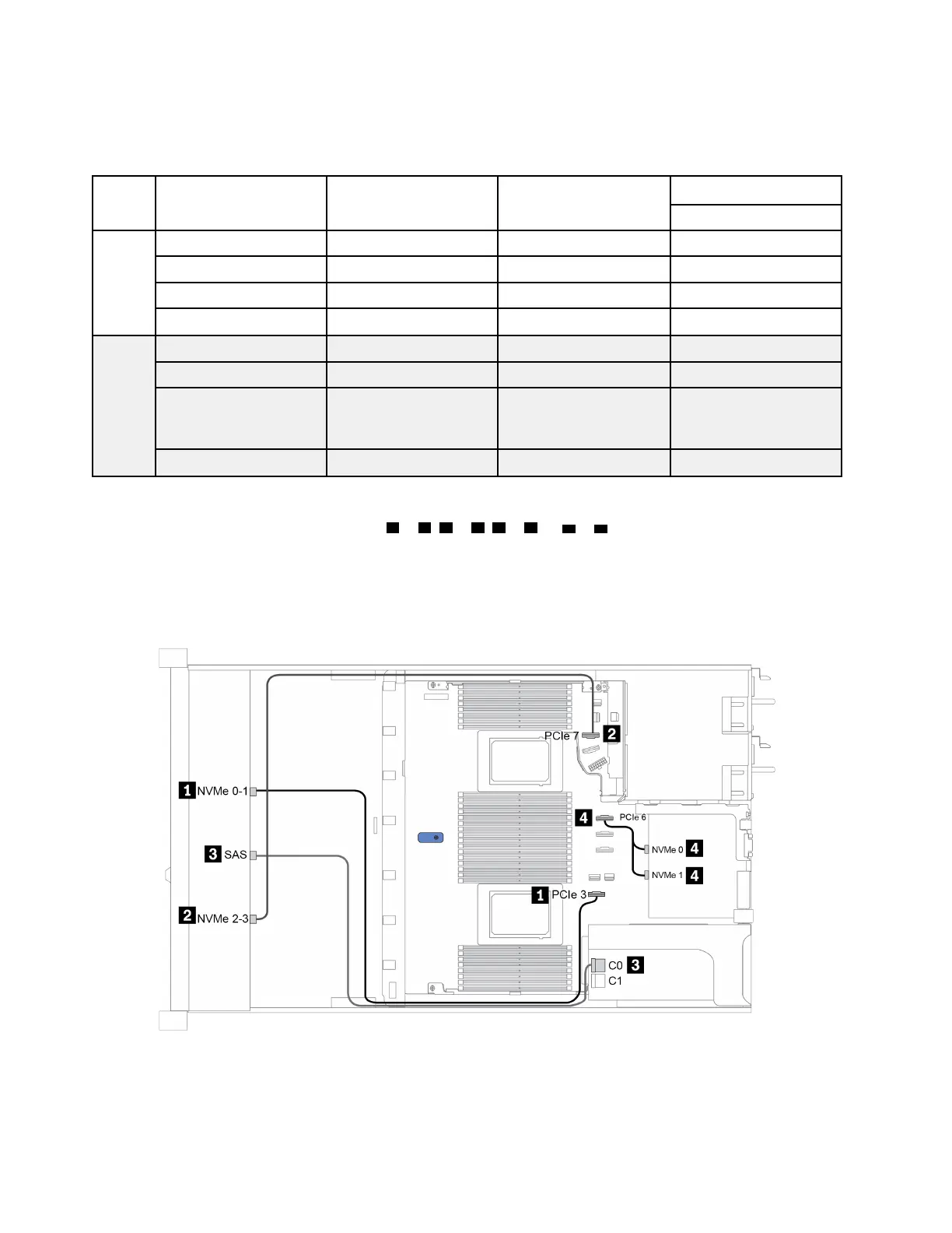
Front: one 4 x 3.5-inch AnyBay backplane
Rear: one 2 x 2.5-inch NVMe backplane
Con-
fig.
Front BP Rear BP
System board
Storage controller
SFF 8i RAID/HBA
5
NVMe 0–1
PCIe 3
NVMe 2–3 PCIe 7
SAS PCIe 2
NVMe 0, NVMe 1
PCIe 6
6
NVMe 0–1
PCIe 3
NVMe 2–3 PCIe 7
SAS
Gen 4: C 0
Gen 3: C 0, C 1
NVMe 0, NVMe 1
PCIe 6
The following illustration shows the cable routing for the configuration 6, the routing for configuration 5 is
similar. Connections between connectors:
1 1 , 2 2 , 3 3 , ... n n
Note: For models that support Gen 3 and Gen4 adapters at the same slot, the illustration shows only the
cable routing information for Gen 4 adapters, the routing and connector information is similar for Gen 3
adapters.
Figure 23. Cable routing for configuration 6
74 ThinkSystem SR645 Setup Guide

Table of Contents

Other manuals for Lenovo ThinkSystem SR645

Related product manuals