EasyManua.ls Logo

Lenovo ThinkSystem ST550 7X09 - Front Panel

Lenovo ThinkSystem ST550 7X09
220 pages
To Next Page IconTo Next Page
To Next Page IconTo Next Page
To Previous Page IconTo Previous Page
To Previous Page IconTo Previous Page
Loading...
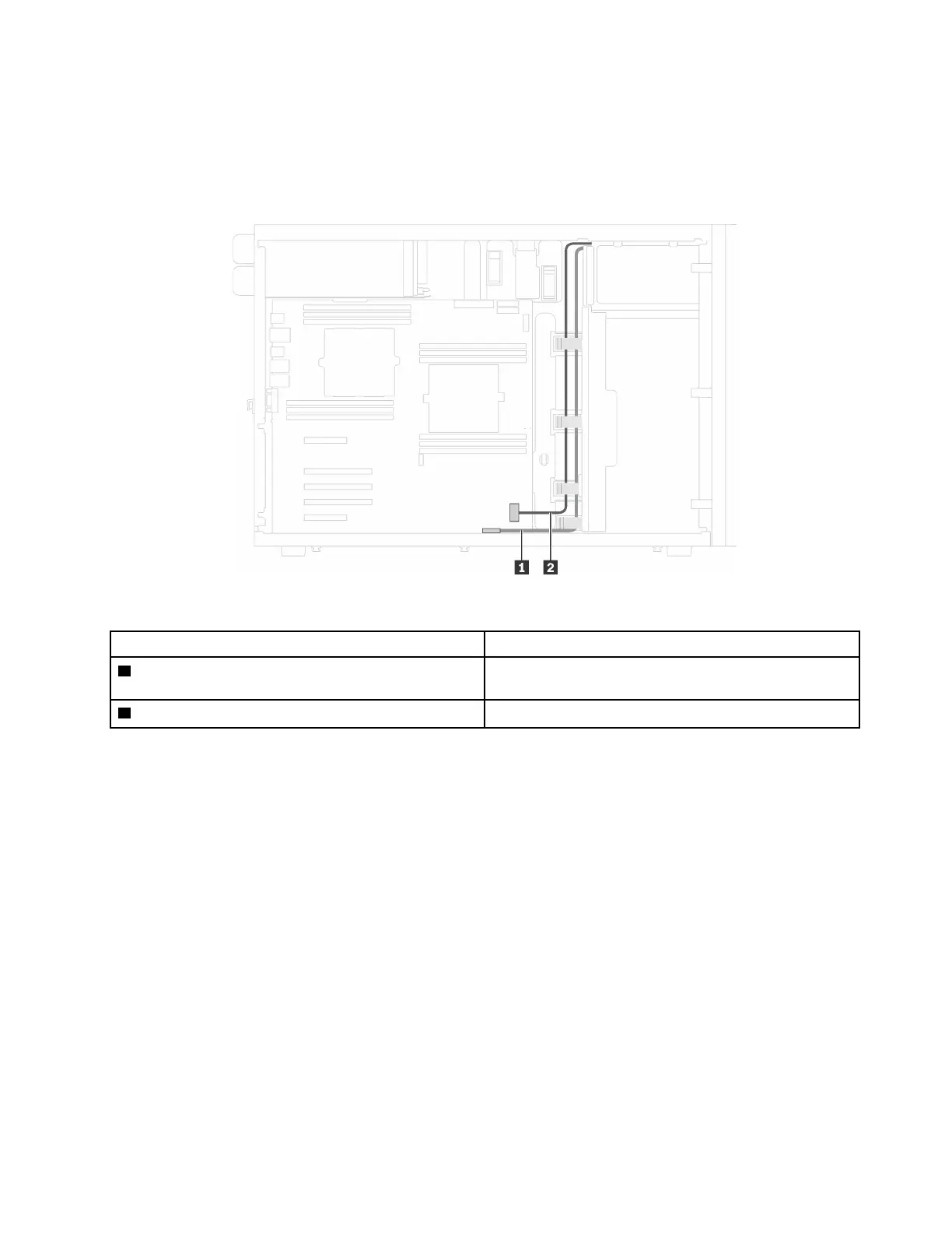
Front panel
Use the section to understand the cable routing for the front panel.
Note: Ensure that all cables are routed through the correct cable clips.
Figure 12. Cable routing for the front panel
Cable
To
1 Operator-information-panel cable Operator-information-panel connector on the system
board
2 USB cable Front-panel-USB connector on the system board
Chapter 2. Server components 29

Table of Contents

Related product manuals