EasyManua.ls Logo

Lenze E82ZAFVC010 - Dimensions

Lenze E82ZAFVC010
70 pages
Print Icon
To Next Page IconTo Next Page
To Next Page IconTo Next Page
To Previous Page IconTo Previous Page
To Previous Page IconTo Previous Page
Loading...
Technical data
Dimensions
4
l
19
EDS82ZAFVCxxx EN 4.0
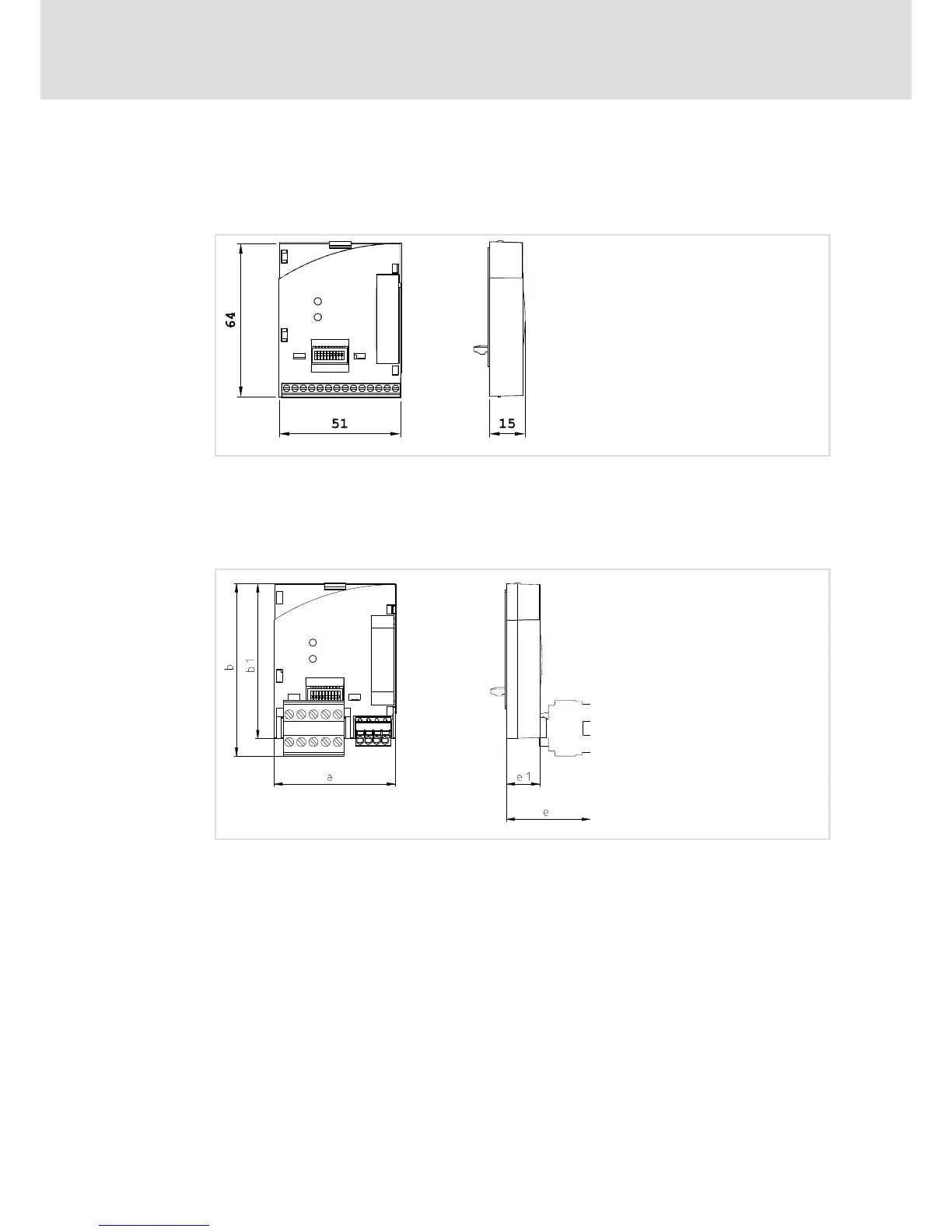
4.6 Dimensions
E82ZAFVC001
function module
E82ZAFD001E
a51 mm
b 64 mm
c 15 mm
E82ZAFVC010
function module
E82ZAFD101B
a51 mm
b 72 mm
b1 64 mm
e 30 mm
E1 15 mm

Related product manuals