EasyManua.ls Logo

LG MULTI AMNQ09GSJAA - Piping Diagrams

LG MULTI AMNQ09GSJAA
72 pages
Print Icon
To Next Page IconTo Next Page
To Next Page IconTo Next Page
To Previous Page IconTo Previous Page
To Previous Page IconTo Previous Page
Loading...
20
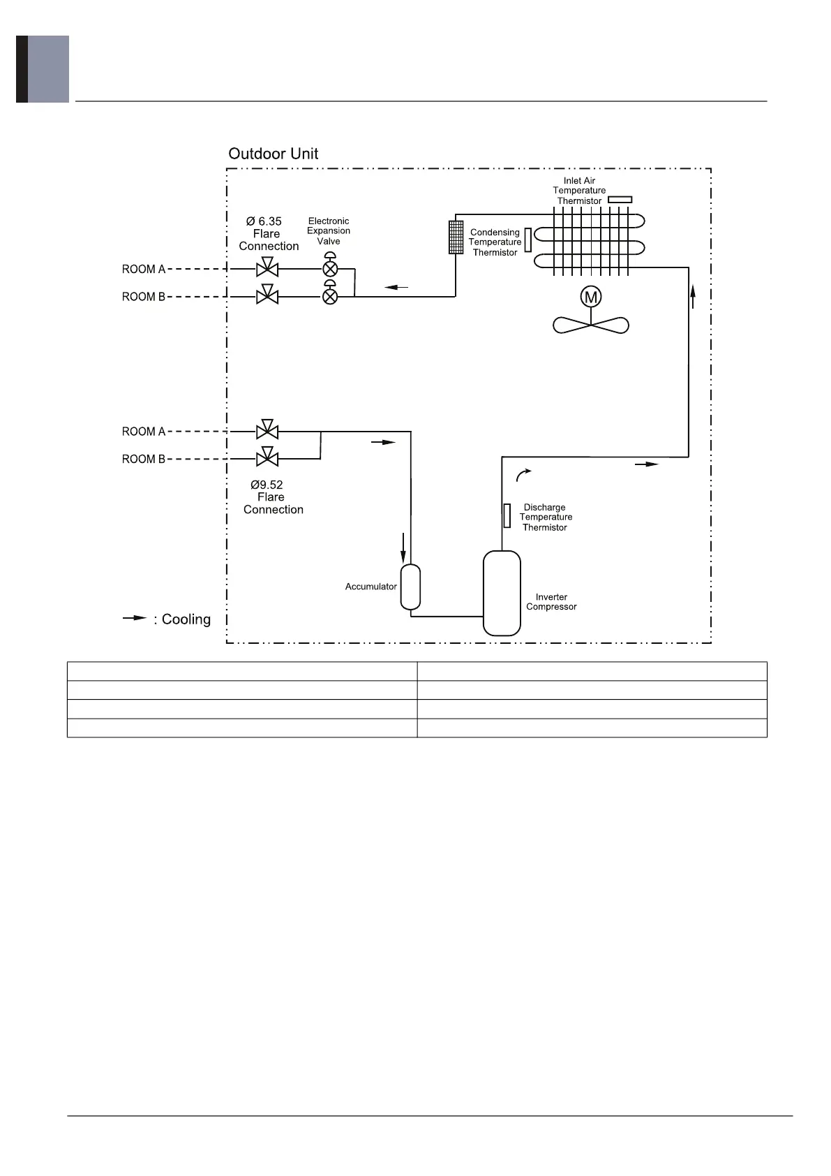
MULTI Standard
Outdoor Unit
9. Piping diagrams
A2UQ18GFAB
Description PCB Connector
Condensing temperature Thermistor CN_MID
Inlet air temperature Thermistor CN_AIR
Discharge temperature Thermistor CN_DISCHARGE

Related product manuals