EasyManua.ls Logo

LG MULTI AMNQ09GSJAA - Page 52

LG MULTI AMNQ09GSJAA
72 pages
Print Icon
To Next Page IconTo Next Page
To Next Page IconTo Next Page
To Previous Page IconTo Previous Page
To Previous Page IconTo Previous Page
Loading...
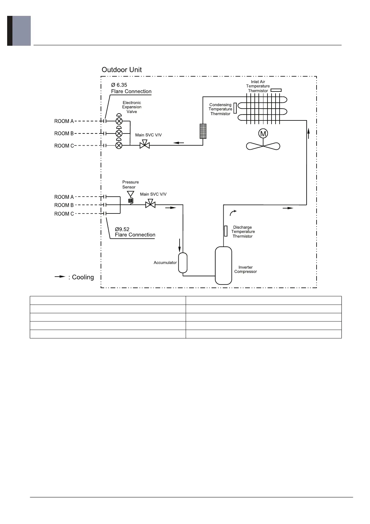
9. Piping diagrams
22
MULTI Standard
Outdoor Unit
A3UQ34GFAB
Description PCB Connector
Condensing temperature Thermistor CN_MID
Inlet air temperature Thermistor CN_AIR
Discharge temperature Thermistor CN_DISCHARGE
Pressure Sensor CN_H_PRESS

Related product manuals