EasyManua.ls Logo

LG MULTI F - Dimensions

LG MULTI F
224 pages
Print Icon
To Next Page IconTo Next Page
To Next Page IconTo Next Page
To Previous Page IconTo Previous Page
To Previous Page IconTo Previous Page
Loading...
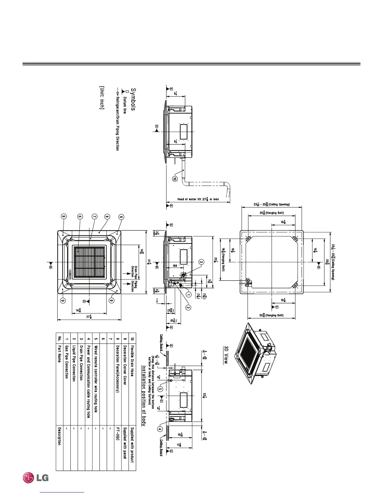
Figure 187: LMCN185HV Dimensions.
Dimensions
Supply Air Vane
Supply Air Vane
Supply Air Vane
Return Air Grille
FOUR-WAY CEILING-CASSETTE INDOOR UNITS
CEILING-CASSETTE | 133
Four-Way Ceiling-Cassette
Due to our policy of continuous product innovation, some specications may change without notication.
©LG Electronics U.S.A., Inc., Englewood Cliffs, NJ. All rights reserved. “LG” is a registered trademark of LG Corp.
MULTI
F
MAX
MULTI
F

Table of Contents

Other manuals for LG MULTI F

Related product manuals