EasyManua.ls Logo

LG MULTI F - Flaring and Brazing Procedures; Flaring Procedure; Flared Connection Dimensions; Tightening Torque

LG MULTI F
224 pages
Print Icon
To Next Page IconTo Next Page
To Next Page IconTo Next Page
To Previous Page IconTo Previous Page
To Previous Page IconTo Previous Page
Loading...
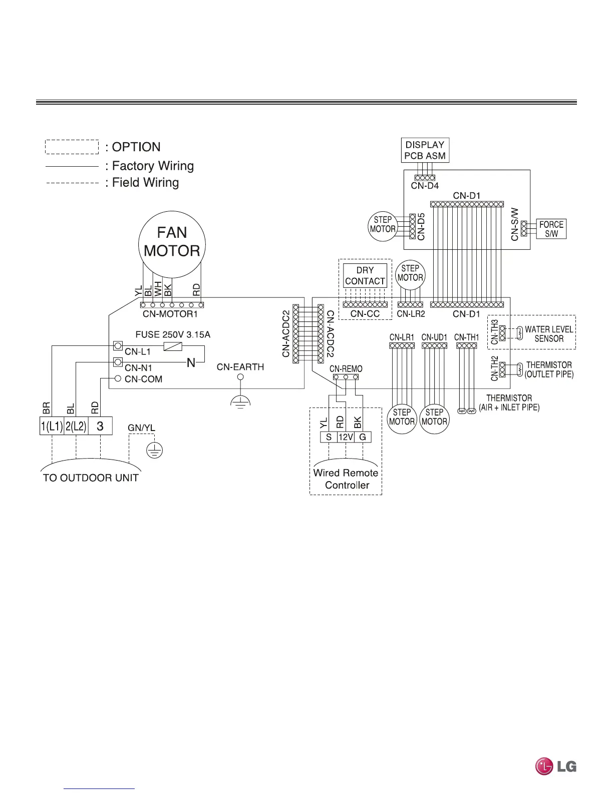
Wiring Diagram
Figure 47: Multi F Art Cool Gallery Indoor Units Wiring Diagram.
ART COOL GALLERY INDOOR UNITS
Due to our policy of continuous product innovation, some specications may change without notication.
©LG Electronics U.S.A., Inc., Englewood Cliffs, NJ. All rights reserved. “LG” is a registered trademark of LG Corp.
46 | ART COOL GALLERY™
Multi F and Multi F MAX Indoor Unit Engineering Manual
MULTI
F
MAX
MULTI
F

Table of Contents

Other manuals for LG MULTI F

Related product manuals