EasyManua.ls Logo

LG MULTI F - Dimensions

LG MULTI F
224 pages
Print Icon
To Next Page IconTo Next Page
To Next Page IconTo Next Page
To Previous Page IconTo Previous Page
To Previous Page IconTo Previous Page
Loading...
ART COOL GALLERY INDOOR UNITS
Dimensions
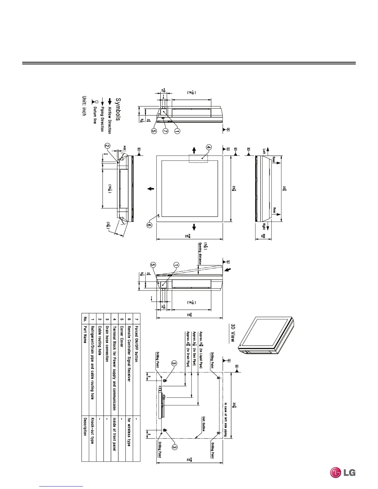
Figure 41: LMAN097HVP and LMAN127HVP Dimensions.
Supply Air Va ne
Return Air Inlet
Supply Air Va ne
Supply Air
Supply
Air
Supply
Air
Discharge Air Grille
Supply Air Va ne
Due to our policy of continuous product innovation, some specications may change without notication.
©LG Electronics U.S.A., Inc., Englewood Cliffs, NJ. All rights reserved. “LG” is a registered trademark of LG Corp.
40 | ART COOL GALLERY™
Multi F and Multi F MAX Indoor Unit Engineering Manual
MULTI
F
MAX
MULTI
F

Table of Contents

Other manuals for LG MULTI F

Related product manuals