EasyManua.ls Logo

LG MULTI F - Electrical; General Information; Location; Accessing the Power Wiring and Communications Cable Connections; Test Run

LG MULTI F
224 pages
Print Icon
To Next Page IconTo Next Page
To Next Page IconTo Next Page
To Previous Page IconTo Previous Page
To Previous Page IconTo Previous Page
Loading...
Due to our policy of continuous product innovation, some specications may change without notication.
©LG Electronics U.S.A., Inc., Englewood Cliffs, NJ. All rights reserved. “LG” is a registered trademark of LG Corp.
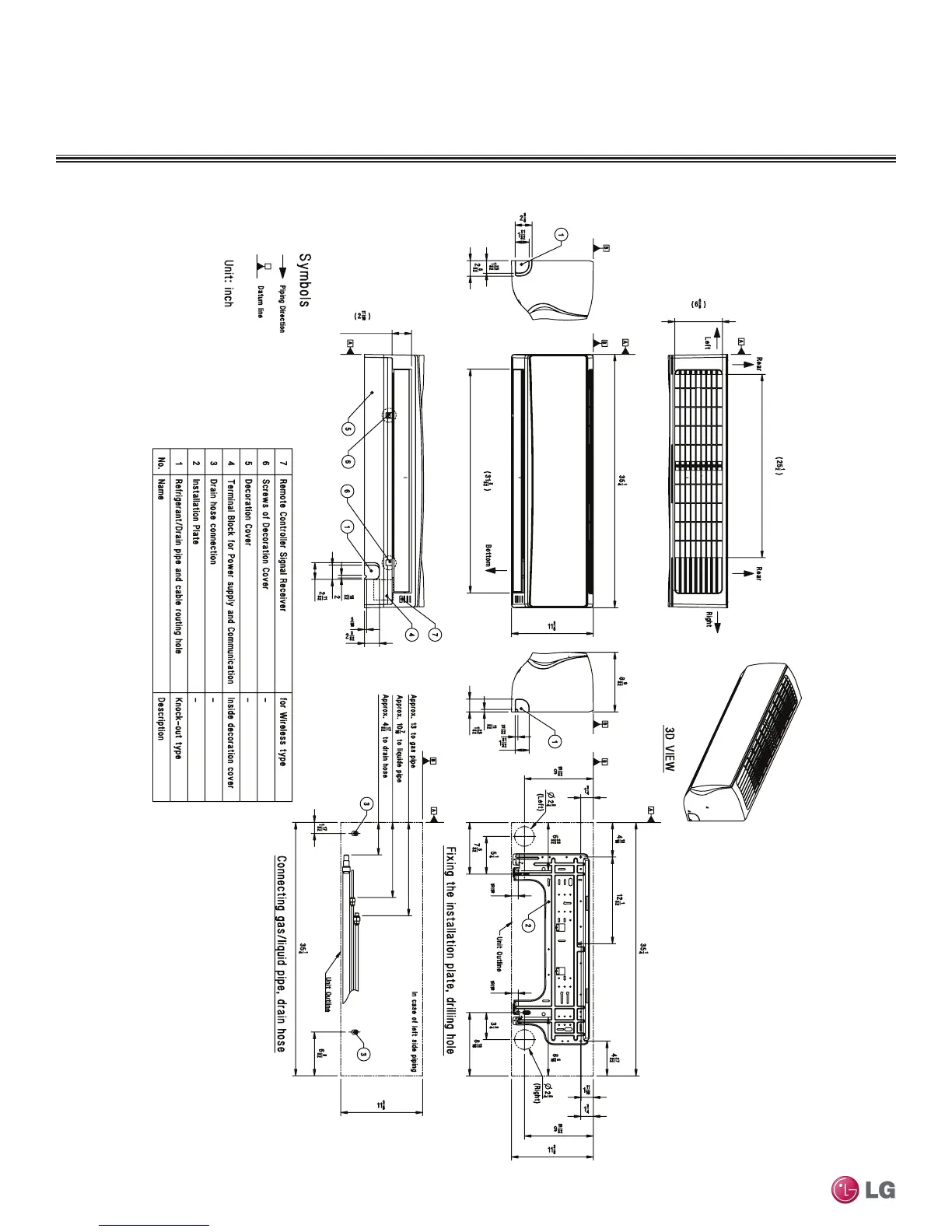
60 | STD. WALL-MOUNTED
Multi F and Multi F MAX Indoor Unit Engineering Manual
MULTI
F
MAX
MULTI
F
Dimensions
STANDARD WALL-MOUNTED INDOOR UNITS
Figure 71: LMN077HVT, and LMN157HVT Dimensions.
Supply Air Vane
Return Air Inlet
Return Air Inlet
Supply Air Vane

Table of Contents

Other manuals for LG MULTI F

Related product manuals