EasyManua.ls Logo

LG MULTI F - Refrigerant Flow Diagram

LG MULTI F
224 pages
Print Icon
To Next Page IconTo Next Page
To Next Page IconTo Next Page
To Previous Page IconTo Previous Page
To Previous Page IconTo Previous Page
Loading...
Refrigerant Flow Diagram
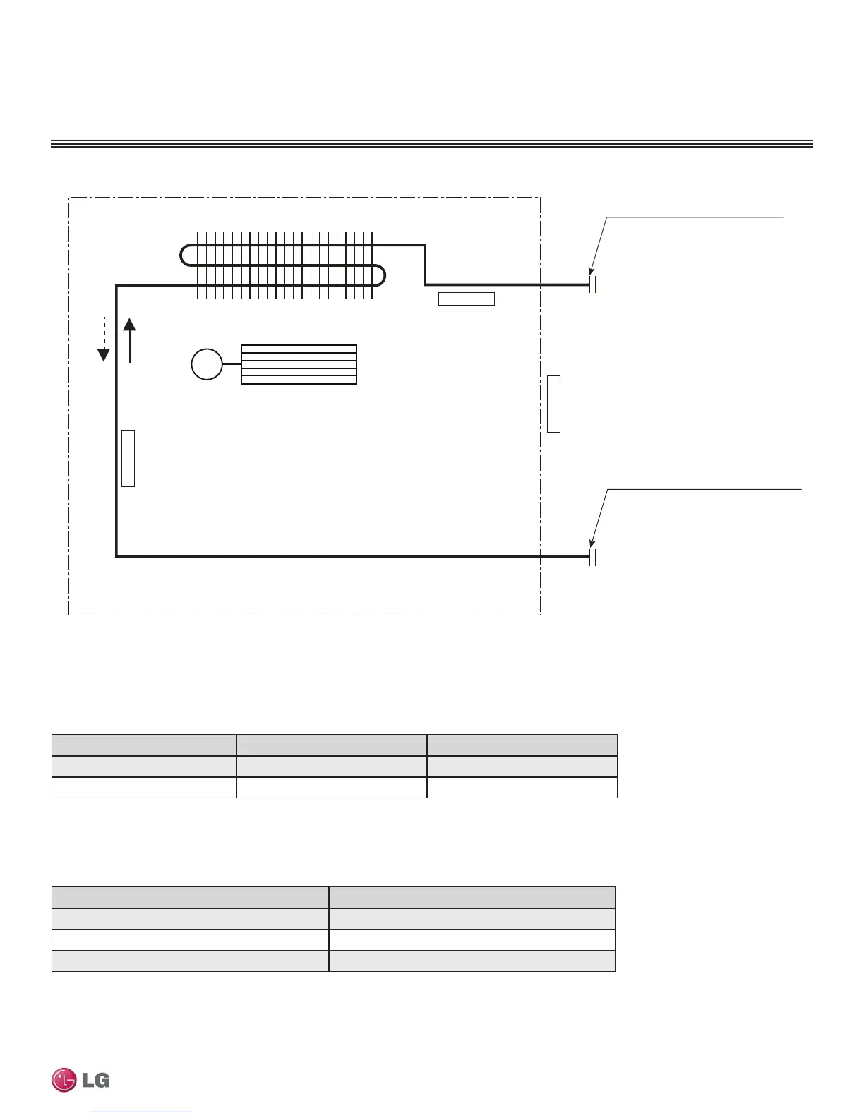
Figure 223: Multi F Vertical-Horizontal Air Handling Indoor Unit Refrigerant Flow Diagram.
VERTICAL-HORIZONTAL INDOOR UNITS
Table 91: Multi F Vertical-Horizontal Air Handling Indoor Unit Refrigerant Pipe Connection Port Diameters.
Model No. Vapor (inch) Liquid (inch)
LMVN240HV 1/2 1/4
LMVN360HV 5/8 3/8
Table 92: Multi F Vertical-Horizontal Air-Handling Indoor Unit Thermistor Details.
Description (Based on Cooling Mode) PCB Connector
Indoor Air Temperature Thermistor CN-ROOM
Evaporator Inlet Temperature Thermistor CN-PIPE/IN
Evaporator Outlet Temperature Thermistor CN-PIPE/OUT
Gas pipe connection port
(flare connection)
Liquid pipe connection port
(flare connection)
Cooling
Heating
Thermistor for
Evaporator Inlet Temperature
Thermistor for
Indoor Air Temperature
Thermistor for Evaporator
Outlet Temperature
Heat Exchanger
Cross Flow Fan
M
VERTICAL-HORIZONTAL | 161
Vertical-Horizontal Air Handling
Due to our policy of continuous product innovation, some specications may change without notication.
©LG Electronics U.S.A., Inc., Englewood Cliffs, NJ. All rights reserved. “LG” is a registered trademark of LG Corp.
MULTI
F
MAX
MULTI
F

Table of Contents

Other manuals for LG MULTI F

Related product manuals