EasyManua.ls Logo

LG MULTI F - Louver Recommendations for Outdoor Unit Enclosure

LG MULTI F
224 pages
Print Icon
To Next Page IconTo Next Page
To Next Page IconTo Next Page
To Previous Page IconTo Previous Page
To Previous Page IconTo Previous Page
Loading...
Table 17: Art Cool Mirror Indoor Unit Refrigerant Pipe Connection Port Diameters.
Model No. Vapor (inch) Liquid (inch)
LMAN097HVT
Ø3/8 Ø1/4
LMAN127HVT
LMAN187HVT Ø1/2 Ø1/4
Table 18: Art Cool Mirror Indoor Unit Thermistor Details.
Description (Based on Cooling Mode) PCB Connector
Indoor Air Temperature Thermistor
CN-TH1
Evaporator Inlet Temperature Thermistor
Evaporator Outlet Temperature Thermistor CN-TH2
Water Level Sensor (Optional) CN-TH3
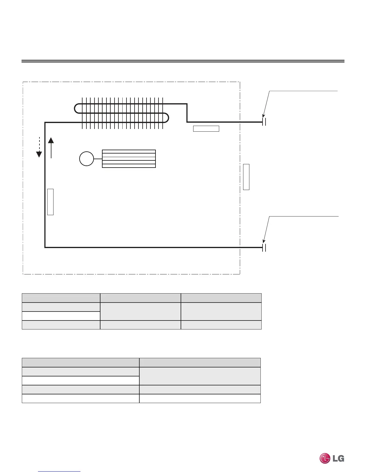
Vapor pipe connection port
(flare connection)
Liquid pipe connection port
(flare connection)
Cooling
Heating
Thermistor for
Evaporator Inlet Temperature
Thermistor for
Indoor Air Temperature
Thermistor for Evaporator
Outlet Temperature
Heat Exchanger
Cross Flow Fan
M
ART COOL MIRROR INDOOR UNITS
Refrigerant Flow Diagram
Figure 9: Art Cool Mirror Indoor Unit Refrigerant Flow Diagram.
Due to our policy of continuous product innovation, some specications may change without notication.
©LG Electronics U.S.A., Inc., Englewood Cliffs, NJ. All rights reserved. “LG” is a registered trademark of LG Corp.
26 | ART COOL MIRROR
Multi F and Multi F MAX Indoor Unit Engineering Manual
MULTI
F
MAX
MULTI
F

Table of Contents

Other manuals for LG MULTI F

Related product manuals